Az értékesítő:
Kósa Edina
+36 20 231 1477

Eladó családi ház Érd, 147 700 000 Ft, 152 négyzetméter

147 700 000 Ft
családi ház, 152 négyzetméter
Egész szobák:
4
Ingatlan állapota:
Kitűnő
Azonosító:
11598338
Értékesítés típusa:
eladó
Ingatlan típusa:
családi ház
Jelleg:
Családi ház
Település:
Érd
Alapterület:
152
Telekterület:
850
Ár:
147 700 000 Ft
Terasz:
Van
Erkély:
Van
Melléképület:
Nincs
Pince:
Nincs
Parketta:
Van
Kábel TV:
Nincs
Telekterület típusa:
négyzetméter
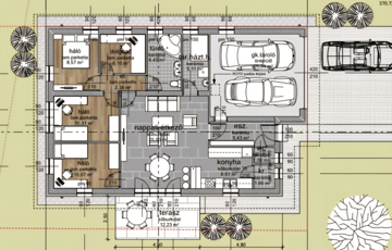
FENYVES-PARKVÁROS VÁROSRÉSZ SZÍVÉBEN, VARÁZSLATOS TELKEN ÉPÜLŐ, TÁGAS CSALÁDI HÁZ, HŐSZIVATTYÚS FŰTÉSSEL, DUPLA GARÁZZSAL! AZ INGATLAN JÚLIUSRA KULCSRAKÉSZ! Érden eladó egy 850 m2-es, telken épülő, ÚJ ÉPÍTÉSŰ, nettó 140 m2-es, 5 szoba + nappali! Az ingatlan ideális helyen épül, csend, nyugalom jellemzi a helyet! Fontos, hogy az ingatlanvásárlás hosszú távon is értékálló befektetés legyen! Kiváló adottságú telek előnyeit figyelembe véve alaposan átgondolt tervezés alapján épül az ingatlan benapozottsága optimális. A beépített anyagok minőségének és a korszerű technológiának köszönhetően az ingatlan energiatakarékos, gazdaságosan üzemeltethető. Rövid műszaki leírás: A ház vasalt, szigetelt beton sávalapra épül, 30-as Porotherm tégla tartófalakkal és 10-es Porotherm tégla, vakolt válaszfalakkal. A homlokzatra 15 cm-es dryvit, a lábazatra 10 cm-es xps, az aljzatra 10 cm-es lépésálló és a fa szerkezetű födémre 30 cm-es kőzetgyapot szigetelés kerül. A tető fedése Terran cseréppel. A fűtésről hőszivattyú gondoskodik, padlófűtéssel. A hideg és meleg burkolatok igény szerint választhatók! Ajánlom mindazon 1-3 gyerekes házaspároknak, pároknak, nyugdíjasoknak, akik egy igazán kiváló, jól megközelíthető, jó adottságokkal rendelkező, csendes, nyugodt helyen szeretnék élni a mindennapjaikat. Ha szeretne kiszabadulni a városi körforgásból, de mégsem akar végleg elszakadni tőle, akkor a legjobb választás ez a környék, ahol az ébredés után saját teraszán kortyolhatja a reggeli kávéját, szippanthatja magába a friss levegőt és hallgathatja a madarak csicsergését. Amennyiben az ajánlatom felkeltette érdeklődését, kérem keressen telefonon. Szép napot és sikeres vásárlást kívánok Önnek!
https://budapest.ingatlan.hu/elado/haz/erd/148-millio-ft;152-negyzetmeter;5-szoba;nincs-megadva-futes/11598338