Az értékesítő:
Magánhirdető

Eladó telek/földterület Makó, 1 000 000 Ft, 720 Négyzetméter

1 000 000 Ft
telek/földterület, 720 Négyzetméter
Azonosító:
11597997
Értékesítés típusa:
eladó
Ingatlan típusa:
telek/földterület
Település:
Makó
Telekterület:
720
Ár:
1 000 000 Ft
Telekterület típusa:
Négyzetméter
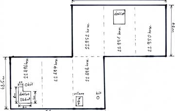
A Makói marosparti övezetben 6 db telek eladó egyben és külön is a 22896 hrsz. telken a képen lévő épület és 1db fúrt kút található ennek az ára 2,1mft. A 22898 számú telken a villany előkészítve van saját oszlop óradobozzal csak az órát kell belerakatni és egy elmenőt csináltatni ezek költsége már nem túl nagy összeg a rémhírekkel ellentétben mert utána jártam erre szakembert is tudok ajánlani aki ezt meg tudja erősíteni és meg is csinálja és ezen a telken szintén van 1db fúrt kút ennek a teleknek az ára 1,5mft. A 22951-es számú telken szintén van épület ami rosszabb állapotú de még felújítható ez betonból van ennek az ára 1,3mft az üres telkeknek ami se épület se villany nincs a 22897, 22952, 22950 ezeknek az árai 1mft/db Mindkét telken amelyiken épület van be van jegyezve a tulajdoni lapra ezért nem kell engedély hozzá. A telkek elhelyezkedéséről térkép vázlatot és elhelyezkedési rajzot hogy mi hol található mellékelek. A telkek darabjai 2 láncosak tehát 720m2/db az egész a 6db 4320m2 Csere és részletfizetés nem érdekel csak komoly érdeklődők keressenek akik már az asszonnyal is megbeszélték! Továbbá pénz nélküli álmodozók beszélgetni vágyók kíméljenek hogy feleslegesen ne raboljuk egymás idejét! Köszönöm!
https://budapest.ingatlan.hu/elado/telek_foldterulet/mako/1-millio-ft;720-negyzetmeter;nincs-megadva-besorolas;nincs-kozmu/11597997