Az értékesítő:
Tec 17 Ingatlan Kft.
+36 70 504 8744

Eladó lakás Budapest XVII. ker, 59 900 000 Ft, 54 négyzetméter

59 900 000 Ft
lakás, 54 négyzetméter
Egész szobák:
2
Ingatlan állapota:
Átlagos
Azonosító:
11596790
Értékesítés típusa:
eladó
Ingatlan típusa:
lakás
Település:
Budapest XVII. ker
Alapterület:
54
Ár:
59 900 000 Ft
Emelet:
2. emelet
Fűtés jellege:
Távfűtés
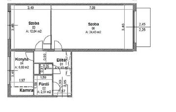
XVII. KERÜLETBEN: RÁKOSKERESZTÚRON, KASZÁLÓ UTCÁBAN, ELADÓ EGY II EMELETI, 54 M2-ES, KÖZEPES ÁLLAPOTÚ, ERKÉLYES, 2 SZOBÁS LAKÁS. A LAKÁSHOZ KÖZEL TALÁLHATÓ A RÁKOSPATAK, MELY MENTÉN KELLEMES SÉTÁKRA ÉS BICIKLIZÉSRE IS LEHETŐSÉG NYÍLIK. A LAKÁS JELLEMZŐI: A nyílászárók minden helyiségben ki lettek cserélve, redőnnyel el lettek látva. A konyha, világos, nagy ablakkal ellátott. A fürdőszoba kádas, a mellékhelyiség külön lett kialakítva. Minden helyiség járólappal burkolt. A konyhabútor és a beépített bútorzat a vételár részét képezi. ELRENDEZÉS: nappali, hálószoba, konyha + étkező, kádas fürdőszoba, mellékhelyiség, előszoba, közlekedő, erkély. A KÖRNYÉK ÉS A KÖZLEKEDÉS: Közelben, pár perc sétára található bevásárlási lehetőség, piac, gyógyszertár, bölcsőde, óvoda, iskola, játszótér, uszoda. A lépcsőház folyamatosan karbantartott, rendezett lakóközösséggel rendelkezik. A közelben a következő tömegközlekedési lehetősége elérhetőek: 161 A, 46, 97 E, 161, 161 E, 162, 162 A, 169 E, 195, 198, 202 E, 261 E, 262 buszok, valamint a 956, 990, 998 éjszakai járatok. IRÁNYÁR: 59.9 M Ft. Banki finanszírozással is megvásárolható! VEVŐINK RÉSZÉRE A KÖZVETÍTÉS DÍJTALAN! A hirdetésben szereplő adatok tájékoztató jellegűek.
https://budapest.ingatlan.hu/elado/lakas/budapest-xvii-ker/60-millio-ft;54-negyzetmeter;2-szoba;nincs-megadva-epitesu/11596790