Az értékesítő:
Magánhirdető

Eladó lakás Budapest XVIII. ker, 86 000 000 Ft, 72 négyzetméter

86 000 000 Ft
lakás, 72 négyzetméter
Építőanyag:
Panel
Egész szobák:
1
Komfort fokozat:
Összkomfort
Ingatlan állapota:
Azonosító:
11596539
Értékesítés típusa:
eladó
Ingatlan típusa:
lakás
Település:
Budapest XVIII. ker
Alapterület:
72
Ár:
86 000 000 Ft
Tulajdonviszony:
Saját
Emelet:
Földszint
Fűtés jellege:
Házközponti
Elhelyezkedés:
Társasház
Kilátás:
kertre néző
Kert:
Közös telek
Pince:
Van
Tároló:
Van
Bútorozott:
Részben bútorozott
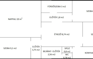
Eladó tágas, alakítható földszinti lakás az Alacskai lakótelepen! Az Alacskai lakótelepen megvételre kínálunk tulajdonostó egy tehermentes 72 m²-es, összkomfortos, 1+ 3 fél szobás, étkezős földszinti lakást, rendezett társasházban, kiváló elosztással és rengeteg átalakítási lehetőséggel. A lakás két irányba tájolt: • a nappali és az egyik szoba a parkoló felé néz, • míg a konyha és két szoba a csendes, zöld hátsó kertre tekint. Főbb jellemzők: • nappali parkettával, a további 3 szoba szőnyegpadlóval van burkolva • a fürdőszoba és WC külön helyiségben található • konyhához tartozik egy kicsi spejz is • a lakáshoz tartozik még a pincében kizárólagos használattal egy tároló. • tiszta, rendezett lépcsőház, jó lakóközösség • fűtés: a társasház saját gázkazánjával Kiemelt előny – könnyen alakítható terek: • a nappali melletti szoba és az előtér egyszerűen egybenyitható, így nagyobb, kényelmesebb szobatér alakítható ki • a konyha, étkező és az egyik szoba összenyitható, így akár egy modern amerikai konyhás nappali–étkező is kialakítható Környék és közlekedés: • óvoda, bölcsőde, Spar, buszmegállók pár perc sétára • néhány megállóra: orvosi szakrendelők, posta, iskolák • a társasház saját elkerített, gondozott pihenőkerttel rendelkezik kiváló tömegközlekedés: o Kőbánya-Kispest metró kb. 30 perc o 50-es villamos, Ferihegy 1., vasút kb. 15 perc o Népliget / Boráros tér kb. 30 perc Fontos plusz: a lakás nem légifolyosó alatt található, így a reptér közelsége ellenére nem jellemző a zajterhelés. Irányár: 86 millió forint Érdeklődni: +36 20 779 5426-os telefonszámon Ha egy jól alakítható, tágas, zöld környezetű otthont keres kiváló infrastruktúrával, ez a lakás remek választás! Keressen bizalommal további információért és megtekintésért!
https://budapest.ingatlan.hu/elado/lakas/budapest-xviii-ker/86-millio-ft;72-negyzetmeter;4-szoba;panel-epitesu/11596539