Az értékesítő:
Edvi Zsuzsanna
+36 20 277 7237

Eladó lakás Győr, 107 184 375 Ft, 99 négyzetméter

107 184 375 Ft
lakás, 99 négyzetméter
Egész szobák:
4
Ingatlan állapota:
Átlagos
Azonosító:
11596355
Értékesítés típusa:
eladó
Ingatlan típusa:
lakás
Település:
Győr
Alapterület:
99
Ár:
107 184 375 Ft
Emelet:
2. emelet
Fűtés jellege:
Cirkó
Építési év:
Új építésű
Erkély:
Van
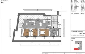
Ez a penthouse azoknak szól, akik értik a különbséget egy lakás és egy valódi presztízsotthon között. A Szitásdomb II. lakóparkban kínálunk megvételre egy kivételes adottságú, prémium penthouse lakást 34 m²-es panorámás tetőterasszal, azok számára, akik nem hajlandók kompromisszumokra. Győr belvárosától mindössze 10 percre, kertvárosi környezetben, mégis kiváló közlekedéssel – az M1 autópálya elkerülő és az AUDI közvetlen közelében – született meg ez a modern, elegáns lakópark, amely a nyugalmat és a városi kényelmet tökéletes egyensúlyba helyezi. A terület közigazgatásilag **Vámosszabadi**hoz tartozik, ami tovább erősíti a környék exkluzív, kisvárosias karakterét. Penthouse, amely új szintre emeli az otthon fogalmát A 98,71 m²-es, déli fekvésű lakás minden részletében a tágasság és az elegancia érzetét kelti. A közel 46 m²-es nappali–konyha–étkező tér természetes fénnyel telik meg egész nap, míg a 34,33 m²-es tetőterasz privát oázisként szolgál – reggeli kávéhoz, esti borozáshoz, vendégfogadáshoz. Három külön nyíló hálószoba, kifinomult belső arányok, zavartalan intimitás – tökéletes választás modern családok vagy felsővezetők számára. PRÉMIUM MŰSZAKI TARTALOM – látható és érezhető minőség - A+ energetikai besorolás - 30 cm vastag hanggátló lakáselválasztó falak - 20 cm homlokzati hőszigetelés - INTERNORM háromrétegű nyílászárók, antracit külső megjelenéssel - Központi hőszivattyús rendszer - Padlófűtés és mennyezethűtés – látható klímaberendezések nélkül - Elektromos alumínium redőny-előkészítés - Exkluzív üvegkorlátos teraszok - Gondosan megválasztott prémium anyaghasználat A kivitelezés mögött nagy múltú, megbízható fejlesztő áll – ez az a minőség, amely hosszú távon is értéket képvisel. A 98,70 m2-es, 2. emeleti (L21), D fekvésű lakás HELYISÉGEI: Előtér 2,7 m2 Nappali 28,67 m2 Konyha-étkező. 17,1 m2 WC 1,62 m2 Fürdő 8,14 m2 Közlekedő 1,8 m2 Szoba 15,08 m2 Szoba 11,28 m2 Szoba 12,32 m2 TETŐTERASZ 34,33 m2. Az ár emelt szintű fűtéskész állapotra vonatkozik és tartalmazza az 5% Áfát, valamint a telekhányadot. Igény szerint kulcsrakész befejezés egyedi megállapodás alapján elérhető. A lakáshoz 2 db saját gépkocsibeálló tartozik (kötelező), mely biztosítja a mindennapok zavartalan komfortját. 1.000.000 Ft + (27% áfa). A lakáshoz tartozó parkolók száma: P40-P41 Várható átadás: 2026. február További költségek: - ügyvédi díj: lakás vételárnak 0,8%-a - egyszeri 150.000 Ft, az albetétesítéshez, földhivatali eljáráshoz Amennyiben hitelre van szüksége ingyenes tanácsadással és teljes körű ügyintézéssel állunk rendelkezésére. Minden jelenleg hatályos támogatás igénybe vehető! A társasház további elérhető lakásai: L10 – 1. emelet, 61,69 m2 + 4,2 m2 erkély bruttó 59.005.750 Ft L11 – 1. emelet, 62,45 m2 + 13,91 m2 erkély bruttó 64.199.625 Ft L16 – 1. emelet, 65,49 m2 + 4,2 m2 erkély bruttó 62.520.750 Ft L20 – 1. emelet, 68,41 m2 + 6 m2 erkély bruttó 66.054.250 Ft L21 – 2. emelet, 98,71 m2 + 34,33 m2 erkély bruttó 107.184.375 Ft L22 – 2. emelet, 92,46 m2 + 22 m2 erkély bruttó 95.654.250 Ft A lakóparkban kiépítésre kerül: játszótér, óvoda, bölcsőde, orvosi rendelő, szolgáltatók és számos üzlet is. A csendes kisvárosi környezet, a város és az Ipari Park közelsége, könnyű megközelíthetősége miatt kitűnő választás akár saját lakásnak, akár befektetésnek is. Engedje meg, hogy bemutassuk Önnek ezt az egyedülálló lehetőséget.. Ez az otthon személyesen győz meg igazán
https://budapest.ingatlan.hu/elado/lakas/gyor/107-millio-ft;99-negyzetmeter;4-szoba;nincs-megadva-epitesu/11596355