Az értékesítő:
Porkoláb Petra
+36 30 324 6110

Eladó lakás Budapest XIII. ker, 69 900 000 Ft, 42 négyzetméter

69 900 000 Ft
lakás, 42 négyzetméter
Építőanyag:
Tégla
Egész szobák:
1
Komfort fokozat:
Összkomfort
Ingatlan állapota:
Felújított
Azonosító:
11595019
Értékesítés típusa:
eladó
Ingatlan típusa:
lakás
Település:
Budapest XIII. ker
Alapterület:
42
Ár:
69 900 000 Ft
Tulajdonviszony:
Saját
Emelet:
1. emelet
Fűtés jellege:
Villany
Kilátás:
udvari
Építési év:
50 évesnél régebbi
Erkély:
Nincs
Pince:
Nincs
Tároló:
Nincs
Lift:
Van
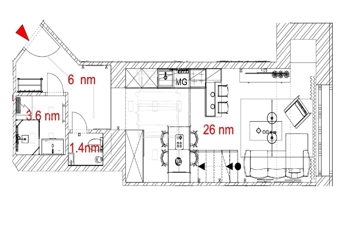
Modern, galériás okosotthon eladó a 13. kerületben, a Visegrádi utca elején! A XIII. kerület egyik legjobb részén, a Visegrádi utca elején, a körúthoz közel, egy szépen karbantartott, 6 szintes társasház 1. emeletén található ez a teljes körűen felújított, 41 m²-es, galériás, 1 szobás lakás. A belsőépítész által megálmodott design, a prémium anyaghasználat és az okosotthon megoldások modern, kényelmes életteret biztosítanak – fiatal pároknak, első lakásként vagy befektetésnek is tökéletes választás. Főbb jellemzők: • Teljes körű műszaki és esztétikai felújítás • 42 m² alapterület • Padlófűtés minden helyiségben • 3 rétegű, hő- és hangszigetelt nyílászárók • Gree klíma • Gépesített, egyedi tervezésű konyhabútor • Belsőépítész által tervezett, alacsony energiaigényű lakás • Részben bútorozott, kérésre teljes bútorzattal is elérhető (külön megállapodás szerint) • Zuhanyzós fürdőszoba • 1. emelet, galériás kialakítás Lokáció: Nyugati tér, Lehel tér, Szent István körút pár perc sétára. Kiváló közlekedés, éttermek, kávézók, boltok közvetlen közelben. Birtokbavétel: 2026 január A képek látványtervek, amelyek hűen tükrözik majd a végleges kialakítást. Érdeklődni privát üzenetben vagy telefonon.
https://budapest.ingatlan.hu/elado/lakas/budapest-xiii-ker/70-millio-ft;42-negyzetmeter;1-szoba;tegla-epitesu/11595019