Az értékesítő:
Göbölyös Ágnes
+36 30 397 6489

Eladó lakás Budapest XXIII. ker, 65 250 000 Ft, 52 négyzetméter

65 250 000 Ft
lakás, 52 négyzetméter
Építőanyag:
Tégla
Egész szobák:
2
Komfort fokozat:
Összkomfort
Ingatlan állapota:
Kitűnő
Azonosító:
11594776
Értékesítés típusa:
eladó
Ingatlan típusa:
lakás
Település:
Budapest XXIII. ker
Alapterület:
52
Ár:
65 250 000 Ft
Tulajdonviszony:
Saját
Emelet:
Földszint
Fűtés jellege:
Hőszivattyú
Kilátás:
udvari
Építési év:
Új építésű
Erkély:
Van
Pince:
Nincs
Tároló:
Nincs
Lift:
Nincs
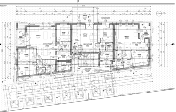
Eladó egy új építésű, összesen 6 lakásból álló társasház valamennyi lakása. Az ingatlan Soroksár új kertvárosi lakóparkjában, csendes, családbarát környezetben található, ahol a nyugodt életvitel és a jó városi elérhetőség harmonikusan találkozik. A város zajától távol, mégis kiváló infrastruktúrával rendelkezik: üzletek, szolgáltatások és tömegközlekedés könnyen elérhetők. A Soroksári kiserdő és a Duna közelsége különleges, természetközeli hangulatot biztosít, amely valódi otthonérzetet nyújt a leendő tulajdonosok számára. 1. lakás: - Földszint, - 75 nm, - 3 szoba, - Amerikai konyhás nappali, - 1 Fürdő, - 1Wc, - Terasz 5 nm. - 108.750.000 Ft A meghirdetett lakás: 2. lakás: - Földszint, - 45 nm, - 1 szoba, - Amerikai konyhás nappali, - 14,5 nm Terasz, - Fürdő-wc, - Kamra. - 65.000.000 Ft 3. lakás: - Földszint, - 48 nm, - 1 szoba, - Amerikai konyhás nappali, - 5nm terasz, - Fürdő-wc. - 69.000.000 Ft 4. lakás: - Emelet, - 69 nm, - 3 szoba, - Amerikai konyhás nappali, - 1 wc, - 1 Fürdő, - Erkély 7nm. - 100.000.000 Ft 5. lakás: - Emelet, - 53,5 nm, - 2 szoba, - Amerikai konyhás nappali, - Fürdő-Wc, - Kamra, - Erkély 3,7nm. - 77.000.000 Ft 6. lakás: - Emelet, - 48 nm, - 1 szoba, - Amerikai konyhás nappali, - Fürdő-Wc, - Kamra, - Erkély 5nm. - 69.000.000 Ft Minden lakáshoz tartozik egy autóbeálló a ház előtt. Földszinti lakásokhoz kicsi kert is tartozik. Az elkészült lakások lakhatási engedéllyel kerülnek átadásra!!! Tervezett átadás: 2026. év vége! Ütemezés: 20% foglaló, a fennmaradó összeg megbeszélés alapján. Az ingatlanok 3%-os Otthon Start hitellel is megvásárolhatóak. Irodánk 30 éves szakmai tapasztalattal áll ügyfelei rendelkezésére! Bankfüggetlen hitelcentrummal, jogi hátérrel segítjük ingatlanvásárlását! Várom szíves megkeresését, hívjon bizalommal!
https://budapest.ingatlan.hu/elado/lakas/budapest-xxiii-ker/65-millio-ft;52-negyzetmeter;2-szoba;tegla-epitesu/11594776