Az értékesítő:
Göbölyös Ágnes
+36 30 397 6489

Eladó családi ház Dunaharaszti, 177 000 000 Ft, 193 négyzetméter

177 000 000 Ft
családi ház, 193 négyzetméter
Építőanyag:
Tégla
Egész szobák:
5
Komfort fokozat:
Dupla komfort
Fűtés módja:
Hőszivattyú
Ingatlan állapota:
Kitűnő
Azonosító:
11594774
Értékesítés típusa:
eladó
Ingatlan típusa:
családi ház
Jelleg:
Ikerház
Település:
Dunaharaszti
Alapterület:
193
Telekterület:
548
Ár:
177 000 000 Ft
Szintek száma:
1 szint
Fűtés jellege:
Geotermikus
Kor:
Új építésű
Terasz:
Van
Pince:
Nincs
Telekterület típusa:
négyzetméter
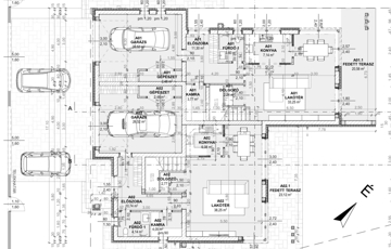
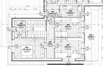
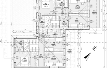
Tópark Lakópark Dunaharaszti! Exkluzív, tó köré épülő lakóparkban kínálunk megvételre prémium kivitelű ikerházfeleket, ahol a modern otthon és a nyugodt, természetközeli életstílus találkozik. A 38 hektáros, zárt lakópark egyedülálló szolgáltatásokat biztosít lakói számára, valódi resort hangulatot teremtve a mindennapokban. Lakóparki szolgáltatások • étterem • wakeboard pálya • homokos strand és napozó sziget • kivilágított futópálya • portaszolgálat • horgászási lehetőség • privát sportközpont (kondipark, tenisz-, lábtenisz- és grundfoci-pálya) • játszótér • kutyafuttató Az ingatlanról: Az ikerházfelek belső elrendezése A földszinten tágas előszoba, külön dolgozószoba, vendégfürdő, kamra és garázs mellett egy világos, nagy egybenyitott nappali–étkező–konyha kapott helyet, amely közvetlen kapcsolatban áll a fedett terasszal és a kerttel, ideális teret adva a mindennapi együttlétekhez. Az emeleti szint teljes egészében a pihenést szolgálja: négy hálószoba, három fürdőszoba, közlekedő és erkély biztosítja a kényelmes, jól szeparált privát életteret minden családtag számára. A terven még nem látható, de az autóbeállók fölé 1-1 szoba kialakításra kerül. 1.-es ikerházfél: nettó lakótér: 160 m² terasz + erkély: 50 m² Ára: 177.000.000 Ft 2.-es ikerházfél: nettó lakótér: 170 m² terasz + erkély: 46m² Ára: 177.000.000 Ft Az ikerházfelek önálló rendeltetési egységként, 548 nm saját telekrésszel, garázzsal, fedett terasszal és erkéllyel kerülnek kialakításra. ️ Műszaki leírás Modern, földszint + emeletes ikerház Porotherm N+F falazattal, monolit vasbeton födémmel és sávalapozással épül. A homlokzat 15 cm hőszigeteléssel, korszerű többrétegű hőszigetelt nyílászárókkal készül. A fűtést hőszivattyús rendszerű elektromos padlófűtés, a hűtést klímaberendezés biztosítja. Az ingatlan okosotthon-rendszerrel, légtechnikai rendszerrel, valamint napelem-előkészítéssel kerül kialakításra. Elhelyezkedés TESCO, ALDI, LIDL és KFC 3 percen belül elérhető. Az M0-s autóút gyorsan megközelíthető, Budapest kb. 10 km távolságra található. AZ ADATOK TÁJÉKOZTATÓ JELLEGŰEK! Irodánk 30 éves szakmai tapasztalattal áll ügyfelei rendelkezésére. Várom szíves megkeresését.
https://budapest.ingatlan.hu/elado/haz/dunaharaszti/177-millio-ft;193-negyzetmeter;5-szoba;geotermikus-futes/11594774