Az értékesítő:
Mineradoro Kft.
+36 30 662 8208

Eladó családi ház Budapest X. ker, 149 900 000 Ft, 122 négyzetméter

149 900 000 Ft
családi ház, 122 négyzetméter
Egész szobák:
4
Ingatlan állapota:
Épülő
Azonosító:
11593960
Értékesítés típusa:
eladó
Ingatlan típusa:
családi ház
Jelleg:
Családi ház
Település:
Budapest X. ker
Alapterület:
122
Telekterület:
231
Ár:
149 900 000 Ft
Szintek száma:
1 szint
Fűtés jellege:
Egyéb
Telekterület típusa:
négyzetméter
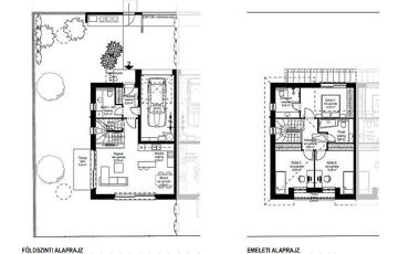
ÚJÉPÍTÉSŰ SORHÁZ ELADÓ ÚJHEGYEN! 122nm-es,4 szobás, 2 szintes sorház, 231nm-es telekkel! Eladásra kínálunk Újhegy egyik legjobb részén 2db jelenleg is épülő sorházat! Maga a ház 2 szintből fog állni és 4 szobából, jelenleg látvány tervek vannak róla és műszaki leírás. A házak kellemes hőérzetét levegős hőszivattyú berendezés fogja biztosítani, mely a padlóról, valamint a plafonról is egyaránt hűt-fűt. A projekt menedzser tervei szerint 2026 III. negyedévére fognak elkészülni és utána azonnal birtokba vehetőek. Az ingatlanokhoz tartozni fog egy-egy fedett garázs és kocsibeálló is. A 2 ingatlan társasházzá lesz nyilvánítva, ügyvédi telekmegosztással, így hitelezhető lesz. Infrastruktúrája kedvező ugyan is 10 perc sétára található tőle az újhegyi sétány, ahol minden megtalálható, ami a minden napi élethez szükséges: Spar, éttermek, dohánybolt, iskola, óvoda. Közlekedés szempontjából is kiváló 28-as villamos a 95-ös és a 195-ös buszmegálló 5 perc sétára található, a 185-ös, 85-ös és a 117-es buszmegálló szintén 5 perc sétára található. Az ár 149.900.000.- Ft / db. Az ingatlan 1/1 tulaj és tehermentes. Vevőink számára a közvetítés díjmentes.
https://budapest.ingatlan.hu/elado/haz/budapest-x-ker/150-millio-ft;122-negyzetmeter;4-szoba;egyeb-futes/11593960