Az értékesítő:
Szabó Szilvia
+36 70 367 7636

Eladó lakás Tata, 69 999 000 Ft, 57 négyzetméter

69 999 000 Ft
lakás, 57 négyzetméter
Egész szobák:
3
Ingatlan állapota:
Azonosító:
11593393
Értékesítés típusa:
eladó
Ingatlan típusa:
lakás
Település:
Tata
Alapterület:
57
Ár:
69 999 000 Ft
Emelet:
Földszint
Fűtés jellege:
Egyéb
Építési év:
Új építésű
Erkély:
Nincs
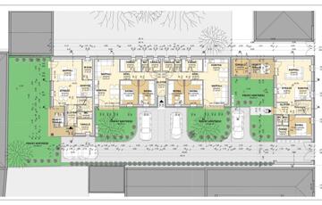
ÚJ ÉPÍTÉSŰ, EKXLÚZÍV SORHÁZI OTTHONOK TATA BELVÁROSÁBAN – SAJÁT KERTTEL Költözzön új építésű, energiatakarékos otthonba saját kerttel a városközpont közelében, pár perc sétára az Öreg-tótól és a Cseke-tótól, ahol a modern kialakítás találkozik a kényelmes városi élettel! OTTHON START 3%-OS HITEL CSOK PLUSZ HITEL (3%-os hitel)!!! ILLETÉKMENTESSÉG!! HŐSZIVATTYÚS PADLÓFŰTÉS!! Olyan otthont keres, amelyet a saját ízlése szerint alakíthat ki?? Mindemellett fontos Önnek a nyugodt, családias környezet, de mégis közel szeretne maradni Tata szívéhez?? Ha Ön is időben jelentkezik, akkor most Önné lehet ebből a 4 lakásos exkluzív sorházi projektből az egyik modern, szintes vagy földszintes otthon, saját kerttel . A 4 lakásból már csak 3 elérhető! Lakások kialakítása szintes és földszintes kialakítás: földszint: amerikai konyhás nappali közvetlen kertkapcsolattal, valamint fürdő és mellékhelyiségek.A földszinti lakásoknál két hálószobával emelet: hálószobák és fürdőszoba Az egyik lakásnál lent is helyet kapott egy hálószoba , az emeleten pedig további kettő A projekt filozófiája A projekt kitalálásánál a legfontosabb szempont volt, hogy a legkorszerűbb építési technológia és anyagok felhasználásán túl kényelmes, tágas helyiségek kerüljenek kialakításra. A lakások fűtését lakásonként telepített, szabályozható levegő hőszivattyúk biztosítják, amelyek egyetlen rendszerben gondoskodnak a fűtésről és a használati melegvíz előállításáról. Az ingatlant egyedi, praktikus megoldásokkal tervezték, melyek az Ön kényelmét szolgálják. Ha mégis lenne egyéni elképzelése, most még lehetősége van rá, hogy a saját ízlése szerint válassza ki a burkolatokat és szanitereket. Műszaki tartalom Teherhordó és válaszfalak: Porotherm 30 N+F Profi falazat, Porotherm 10 N+F Profi válaszfal Födém: monolit vasbeton födém Tetőszerkezet: natúr színű kerámia tetőcserép, szellőző elemekkel, hófogóval Lépcső: gipszzsalus lépcsőszerkezet Hőszigetelés: Padlásfödémen: 25–30 cm Rockwool Multirock kőzetgyapot Homlokzaton: 15 cm Austrotherm EPS H80 üvegszövet hálóval Lábazaton: 15 cm Austrotherm Expert Fix XPS üvegszövet hálóval Nyílászárók: műanyag, szürkés-zöld színben Bejárati ajtó: többponton záródó, hőszigetelő kivitel (szürkés-zöld színben) Fűtés: lakásonkénti levegő-víz hőszivattyú, padlófűtéssel Burkolatok, szaniterek: vásárló igénye szerint választhatók Az épület körül a telek nagy része privát zöldfelület lesz. A burkolt részek kizárólag a gépjárművekhez szükséges minimum mennyiségben készülnek. A terület többi része gyepesített, a telekhatároknál cserjesáv és futónövények biztosítják a zöld környezetet és az egységes látványt. Lakások paraméterei és árai 1-es lakás: 109,91 nm (109.200.000 Ft) + 8,75 nm (4.400.000 Ft) + 1 db térkőves belső parkoló (1.500.000 Ft) + 59,09 nm privát kertrész = 115.100.000 Ft BEVEZETŐ ÁR!!!! 2-es lakás: 57 nm (69.999.000 Ft) + 1 db térkőves belső parkoló (1.500.000 Ft) + 48,44 nm privát kertrész = 71.500.000Ft 3-as lakás: 57 nm (69.999.000 Ft) + 1 db térkőves belső parkoló (1.500.000 Ft) + 48,44 nm privát kertrész = 71.500.000Ft 4-es lakás: ELKELT !!! Projekt ütemezés Építkezés kezdete: 2026. január 15 Műszaki átadás: 2026.December 31 Extra szolgáltatások Ingyenes, teljes körű bankfüggetlen hitel- és CSOK Plusz ügyintézés Szerződés előkészítése és teljes körű jogi támogatás Ne maradjon le erről az exkluzív lehetőségről! Hívjon bizalommal a részletekért: Szabó Szilvia Tel.:06 70 367 76 36
https://budapest.ingatlan.hu/elado/lakas/tata/70-millio-ft;57-negyzetmeter;3-szoba;nincs-megadva-epitesu/11593393