Az értékesítő:
Horváth Zoltán
+36 70 550 6680

Eladó családi ház Budapest XVII. ker, 134 700 000 Ft, 118 négyzetméter

134 700 000 Ft
családi ház, 118 négyzetméter
Építőanyag:
Könnyűszerkezetes
Egész szobák:
4
Komfort fokozat:
Dupla komfort
Ingatlan állapota:
Kitűnő
Azonosító:
11592272
Értékesítés típusa:
eladó
Ingatlan típusa:
családi ház
Jelleg:
Ikerház
Település:
Budapest XVII. ker
Alapterület:
118
Telekterület:
271
Ár:
134 700 000 Ft
Fűtés jellege:
Villany
Kor:
Új építésű
Telekterület típusa:
négyzetméter
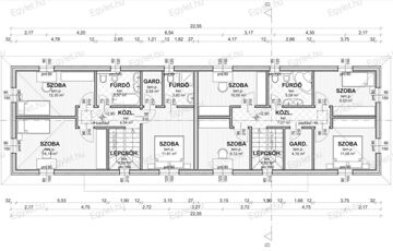
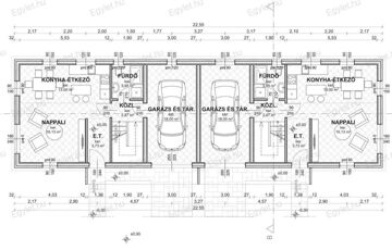
Megvételre kínálunk a 17. kerület egyik legszebb részén, Rákoscsaba-Újtelepen, egy modern, könnyűszerkezetes, garázsos, NAPELEMES, teraszos, 118 nm-es, 4 vagy 5 szobás, gardróbos, 2 fürdős újépítésű ikerházat. Az ingatlanok „AA” energetikai besorolásnak megfelelő paraméterekkel rendelkező önfenntartó otthonok. Minőségi alapanyagokból, igényes kivitelezés jellemzi a projektet, ahol a biztonság és a kényelem mellett az energiatakarékosság volt a fő szempont. A ház átgondolt tervezésének köszönhetően kényelmes, otthonos, szellős, viszont ugyanakkor bővelkedik a reprezentatív, elegáns elemekkel. A napelemnek köszönhetően a rezsi költségek minimalizálódnak. A gépjárművekkel az ingatlanhoz tartozó garázsban, fedett parkolóban vagy térkövezett beállón lehet biztonságosan parkolni.     Az ingatlanhoz 271 nm-es privát telek tartozik   Igénybe vehető lehetséges kedvezmények: CSOK PLUSZ 5% Áfa visszatérítés Babaváró hitel Illeték kedvezmény vagy mentesség.     Az új generációs technológiával épülő házak kiemelkedő és meggyőző tulajdonságai: - a téglafalaknál jobb hőtartással és hangszigeteléssel rendelkeznek - nincs bepárolgás, penészesedés - a téglaházakkal megegyező élettartam és szerkezeti garancia - 9 rétegrendű falak - 8 rétegrendű födém - 7 rétegrendű padlózat - kiemelkedő ár-érték arány Az „AA” energetikai besorolásnak megfelelő paraméterekkel rendelkező, önfenntartó otthonok, 118 nm hasznos területtel, kétféle típusterv alapján épülnek, belső kétszintes, dupla komfortos, 4 illetve 5 szobás kialakítással. Földszinten: konyha, étkező, nappali, előszoba, fürdő, beépített lépcsőfeljáró, fűtött garázs. Felső szinten: 3 vagy 4 szoba, 1 vagy 2 fürdőszoba, gardrób. Legfontosabb jellemzői: - a SolarEdge napelem rendszer kinullázza a villanyszámlát (az általa termelt energia elegendő a teljes háztartás ellátására és pluszban akár egy elektromos autó egész éves töltésére) - elektromos Nobo Oslo Glass radiátorok a fűtéshez - a hűtésről Cascade inverteres okos klíma gondoskodik - automata öntözőrendszer - automata kapuk és garázskapuk - ARISTON bojler a melegvíz előállítására - beépített szaniterek - elektromos törölközőszárítós radiátorok a fürdőkben - prémium kategóriás antracit színű biztonsági bejárati ajtó - riasztó rendszer - video kaputelefon Tető: antracit színű cserepes lemez Nyílászárók: Kömmerling márkájú, minőségi 5 légkamrás, 3 rétegű üvegezéssel ellátott kívülről antracit, belül fehér műanyag ablakok és erkélyajtók, alumínium kombi redőnyökkel Belső térben, a lépcső mellett modern üvegkorlát világítással. Elhelyezkedéstől függően az árak az alábbiak szerint alakulnak: Hátsó lakások: 437 nm telekrésszel, nappali + 4 szobával Ára: 149.000.000 Ft   Az ingatlan biztonságos, nyugodt, csendes, kertes házas övezetében, Rákoscsaba-Újtelep egyik legszebb részén, a Naplás-tó természetvédelmi terület szomszédságában található. A környék fejlett infrastruktúrájának köszönhetően bővelkedik a szociális intézményekben, bölcsőde, óvoda, általános iskola, orvosi intézmények, bevásárlási lehetőségek, találhatóak a közelben. Közlekedése kiváló, busszal az Örs vezér tér vagy vonattal a Keleti pu. rövid idő alatt megközelíthető. Az M0-ás és az M31-es autópálya öt perc alatt elérhető. Hitel, CSOK igénylésben díjmentes ügyintézéssel állunk rendelkezésére! Nálunk kiválaszthatja az Ön számára legkedvezőbb ajánlatot. Várom megtisztelő érdeklődésüket.    
https://budapest.ingatlan.hu/elado/haz/budapest-xvii-ker/135-millio-ft;118-negyzetmeter;4-szoba;villany-futes/11592272