Az értékesítő:
Kálya Réka
+36 70 500 9226

Eladó lakás Nyíregyháza, 40 700 000 Ft, 30 négyzetméter

40 700 000 Ft
lakás, 30 négyzetméter
Építőanyag:
Tégla
Egész szobák:
1
Ingatlan állapota:
Épülő
Azonosító:
11590580
Értékesítés típusa:
eladó
Ingatlan típusa:
lakás
Település:
Nyíregyháza
Alapterület:
30
Ár:
40 700 000 Ft
Emelet:
1. emelet
Fűtés jellege:
Cirkó
Építési év:
Új építésű
Lift:
Nincs
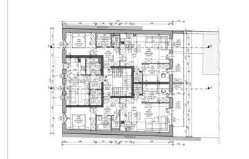
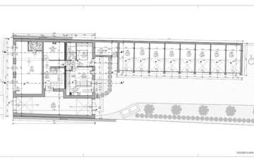
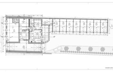
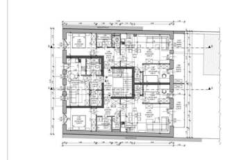
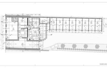
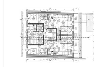
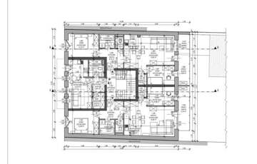
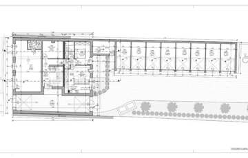
Nyíregyháza belvárosában eladásra kínálok új építésű, 2026. év végi átadással társasházi lakásokat A 7 lakásos társasház Viablokk falazatú, keleti - nyugati fekvésű, csendes, nyugodt környezetben található. A földszinti lakás: 45 m2 + teraszkapcsolat, 1 szoba + nappalis elosztással. Egyedi gázfűtés, padló fűtés. Ára: 54.900.000 Ft 1/1 lakás: 63,12 m2 + 8,79 m2 terasz, 2 szoba + nappali elrendezésű. Egyedi gázfűtés, padló fűtés. Tároló. Ára: 69.250.000 Ft 1/2 lakás: 29,43 m2, 1 szoba, konyha, gardrób. Egyedi gázfűtés, padló fűtés. Ára: 40.700.000 Ft 1/3 lakás: 62,91 m2, nappali + 2 szoba, tároló, erkély (6,05 m²), terasz (4,05 m²). Egyedi gázfűtés, padló fűtés. Ára: 68.200.000 Ft 2/1 lakás: 60,15 m2, nappali + 2 szoba, + erkély (8,79 m2), tároló, egyedi gázfűtés, padló fűtés. Ára: 66.200.000 Ft 2/2 lakás: 29,43 m2 + 6,55 m2 erkély, 1 szoba, konyha, egyedi gázfűtés, padló fűtés. Ára: 45.170.000 Ft 2/3 lakás:62,91 m2 + 6,36 m2 erkély, 2 szoba + nappali, tároló, egyedi gázfűtés, padló fűtés. Ára: 61.100.000 Ft A lakások belső kialakítása teljes mértékben a vevő fantáziájára van bízva. (burkolatok, ajtók, színek választhatók) Garázsok elérhetőek: 9.300.000 Ft + Áfa Parkolóhelyek elérhetőek: 3.300.000 Ft Ha felkeltette érdeklődésedet az ingatlanok bármelyike, keressen bizalommal!Az ingatlan azonosítója: 98434Érdeklődni: +36705009226 Az ingatlan azonosítója: 98434 Érdeklődni: +36705009226
https://budapest.ingatlan.hu/elado/lakas/nyiregyhaza/41-millio-ft;30-negyzetmeter;1-szoba;tegla-epitesu/11590580