Az értékesítő:
Tokodi Ildikó
+36 30 327 5386

Eladó családi ház Nyíregyháza, 78 645 000 Ft, 109 négyzetméter

78 645 000 Ft
családi ház, 109 négyzetméter
Építőanyag:
Tégla
Egész szobák:
3
Ingatlan állapota:
Épülő
Azonosító:
11590490
Értékesítés típusa:
eladó
Ingatlan típusa:
családi ház
Jelleg:
Családi ház
Település:
Nyíregyháza
Alapterület:
109
Telekterület:
500
Ár:
78 645 000 Ft
Fűtés jellege:
Cirkó
Kor:
1-5 éves
Telekterület típusa:
négyzetméter
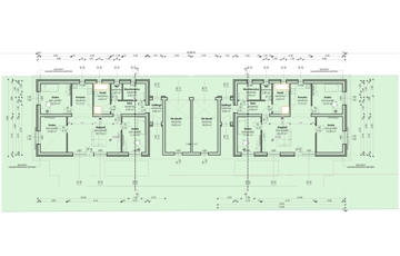
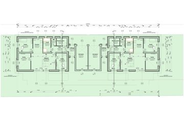
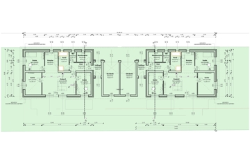
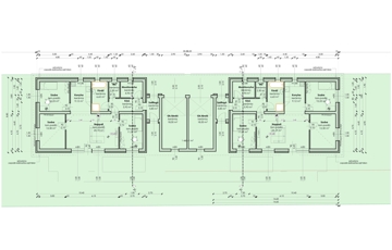
Vevőink számára egy remek lehetőség nyílik akik egy új, exkluzív lakóparkban szeretnének élni. Mindössze csak 8 db lakóegység kerül kivitelezésre a zárt lakóparkban ,a vevők egyedi igényeit is figyelembe véve. Az új építésű iker, vagy önálló házak, szintes vagy földszintes kivitelben is készülnek. A magas minőségű kivitelezése biztosítja, hogy a lakások modern, kényelmes és hosszú távon is fenntarthatóak legyenek. Az ingatlanok prémium anyagokból készülnek és számos kényelmi funkcióval rendelkeznek, melyek kényelmes életet biztosítanak. Magas szintű energiahatékonysági mutató, és emelt minőségű anyagok felhasználásával.    Egyéb tartalom: Lakóegység méretei: egyedileg igénytől függően változtatható 109 m2,  160 m2,  184 m2 A++ energiahatékonysági besorolása kiemelkedő, alacsony energia fogyasztású 30 cm Porotherm X-therm tégla Grafitos szigetelés kiváló hőszigetelő, télen melegen nyáron hűvösen tartja a lakást beton cserép fedés vagy lapos tető is opcionális több rétegű hőszigetelt üveg, és több kamrás szerkezet magas minőségben választható beltéri ajtó magas minőségű burkolatok Csaptelepek, kád, wc mind-mind extra minőségben Padló és radiátor fűtés igény szerint Klíma kiegészítéssel biztonságtechnika akár okos otthon lehetőséggel  Minden ikerház dupla falazattal+szigeteléssel kerülnek elválasztásra, minden lakóegység önálló egységként működik különálló mérőkkel felszerelve.  Legyen Ön a tulajdonosa ennek a fantasztikus ingatlannak. Az ingatlan azonosítója: 97369Érdeklődni: +36303275386 Az ingatlan azonosítója: 97369 Érdeklődni: +36303275386
https://budapest.ingatlan.hu/elado/haz/nyiregyhaza/79-millio-ft;109-negyzetmeter;3-szoba;cirko-futes/11590490