Az értékesítő:
Bencsik Veronika
+36 30 435 4987

Eladó lakás Budapest IX. ker, 93 900 000 Ft, 62 négyzetméter

93 900 000 Ft
lakás, 62 négyzetméter
Építőanyag:
Tégla
Egész szobák:
2
Komfort fokozat:
Összkomfort
Ingatlan állapota:
Azonosító:
11586182
Értékesítés típusa:
eladó
Ingatlan típusa:
lakás
Település:
Budapest IX. ker
Alapterület:
62
Ár:
93 900 000 Ft
Tulajdonviszony:
Saját
Emelet:
5. emelet
Fűtés jellege:
Házközponti (egyedi mérővel)
Kilátás:
kertre néző
Építési év:
11-20 éves
Erkély:
Van
Kocsibeálló:
Van
Pince:
Nincs
Tároló:
Nincs
Lift:
Van
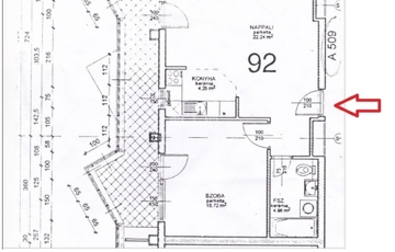
Eladó lakás a Haller-parkban! IX. kerületben kínálok eladásra egy 2000-es években épült társasház 5. emeletén NAPFÉNYES, nagy teraszos, amerikai konyhás nappali + hálószobás lakást,mely ideális az OtthonStart program feltételei szerinti kategóriában! Az épület a Haller park mellett található, közvetlen kijárattal a parkra Az épületben kényelmes, tágas lift, portaszolgálat, biciklitároló van. Közös költség: 24.800 Ft, víz fogyasztás benne van! Fűtését házközponti kazán biztosítja, egyedi mérőkkel felszerelt. Az ingatlan: -biztonsági ajtóval van felszerelve. - kis előtere, tágas, világos amerikai konyhás nappalija és nagy hálószobája van. -18 nm terasz, mely hangulatos beszélgetéseknek és grillezésnek lehet helyszíne. (két napellenző biztosítja az árnyékolást) A nappalihoz egy igény esetén akár hálórésznek is leválasztható dolgozórész tartozik, ami a lakást ideálissá teszi a home-officehoz. A házban teremgarázsban parkolóhelyek általában bérelhetőek vagy megvásárolhatóak, a ház körül fizető parkolóövezet van. A lakás egyedülállóknak, pároknak, kis gyerekes fiataloknak is ideális. Jöjjön el, nézzem meg és tegyen ajánlatot! Hivatkozási azonosító: ID: 390402
https://budapest.ingatlan.hu/elado/lakas/budapest-ix-ker/94-millio-ft;62-negyzetmeter;3-szoba;tegla-epitesu/11586182