Az értékesítő:
Fodor Norbert
+36 20 943 0187

Eladó családi ház Ócsa, 94 900 000 Ft, 142 négyzetméter

94 900 000 Ft
családi ház, 142 négyzetméter
Építőanyag:
Tégla
Egész szobák:
5
Komfort fokozat:
Dupla komfort
Ingatlan állapota:
Kitűnő
Azonosító:
11584419
Értékesítés típusa:
eladó
Ingatlan típusa:
családi ház
Jelleg:
Ikerház
Település:
Ócsa
Alapterület:
142
Telekterület:
250
Ár:
94 900 000 Ft
Kor:
Új építésű
Terasz:
Van
Erkély:
Van
Telekterület típusa:
négyzetméter
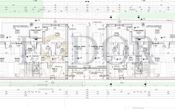
Ócsa, méltán kedvelt részén kínálok eladásra kettő darab, Bruttó 159.5 nm-es, nappali + 4 hálószobás, dupla fürdőszobás, teraszos, magas műszaki tartalommal épülő, hőszivattyús, tetőtér beépítéses, új építésű ikerházi lakásokat!!! A 2025-ös évi elvárásoknak megfelelően épül, levegő-víz hőszivattyúval. A hűtésről kettő db 3.5 KW-os inverteres hűtő-fűtő klíma fog gondoskodni. Az 1239 nm-es telekre 1 db ikerház kerül megépítésre, minden ingatlanhoz kerítéssel leválasztott telek terület tartozik. Az utcafronti 1. számú ingatlanhoz tartozó telekterület: ~250 nm, terasz 14 nm +4 nm tetőterasz, a hátsóudvar felőli ingatlanhoz: ~1000 nm telekterület, terasz 14 nm + 4 nm tetőterasz . A lakások kizárólag fedett kocsibeállóval kapcsolódnak, ezáltal az ott élők egymás nyugalmát nem zavarják. A lakások ügyvéd által ellenjegyzett használati megosztással kerülnek értékesítésre. Árak: 1.lakás: utcafronti ingatlan nettó 142 nm(bruttó 159.5 nm) , ~ 200-250 nm telekterület, levegő-víz hőszivattyú, padlófűtés. Irányár: 99.9 Millió forint. 2.lakás: hátsó udvar felőli nettó 142 nm(bruttó 159.5 nm), ~ 1000 nm telekterület, levegő-víz hőszivattyú, padlófűtés. Irányár: ELKELT!!! ELRENDEZÉSÜKET LÁSD AZ ALAPRAJZON! Az építkezés hamarosan elkezdődik, kövesse nyomon új otthona épülését. A hirdetésben szereplő vételár a kulcsrakész állapotra vonatkozik. Burkolatok, szaniterek, beltéri ajtók választhatók. Megbízható, tőkeerős kivitelező, nem az első építkezése, precíz, minőségi anyagokkal és emberi erőforrással dolgozik. Referencia házak a közelben. Bővebb információért és részletes tájékoztatásért keressen bizalommal!!! Műszaki: • 30-as PHOROTHERM főfal + 10 cm homlokzati szigetelés • 10 cm válaszfalak • fafödém, felette 25 cm ásvány vagy üveggyapot szigetelés • antracit cserép • vasbeton sávalap • antracit, műanyag tokos, 3 rétegű thermo üveges külső nyílászárók redőnnyel • hőszivattyú, padlófűtés • 2 db 3,5 KW-os inverteres hűtő-fűtő klíma egy a nappaliban nappaliban és egy az emeleti közlekedőben • hidegburkolat: 8000ft/nm • melegburkolat: 5000ft/nm Tulajdonságok: • amerikai konyhás világos nappali • nappali + 4 db különnyíló hálószoba • földszinti szülői háló gardróbbal és privát zuhanyzóval • 2 db fürdőszoba • saját privát telekterület • riasztó rendszer előkészítés • napelem előkészítés • utcafronti elektromos kapu az ár részét képezi • alap kertrendezés füvesítve • telek előtti közterület térkövezése AZ ÁR KULCSRAKÉSZ ÁLLAPOTRA VONATKOZIK! ELRENDEZÉSÉT LÁSD AZ ALAPRAJZON! Infrastruktúrája kiváló, Ócsa Budapest közvetlen agglomerációjában található, mindössze 25 km-re a fővárostól, így autóval és vonattal is gyorsan megközelíthető. A település saját vasútállomással rendelkezik, ahonnan a zónázó vonatokkal 30-35 perc alatt elérhető Budapest belvárosa (Kőbánya-Kispest, Nyugati pályaudvar). A M5-ös autópálya és az M0-s körgyűrű közelsége miatt az autós közlekedés is rendkívül kedvező. A környék csendes, családbarát, kiváló infrastruktúrával: iskola, óvoda, orvosi rendelő, gyógyszertár, boltok, piac és sportolási lehetőségek mind helyben elérhetők. Várható átadás: 2026.II. negyedév A leírás kizárólag tájékoztató jellegű IRODÁNK INGYENES HITEL ÜGYINTÉZÉSSEL, TANÁCSADÁSSAL, SZÁMOS BANK AJÁNLATÁVAL ÉS AZ ÚJ CSOK PLUSZ FOLYÓSÍTÁSÁVAL VÁRJA ÜGYFELEIT!
https://budapest.ingatlan.hu/elado/haz/ocsa/95-millio-ft;142-negyzetmeter;5-szoba;nincs-megadva-futes/11584419