Az értékesítő:
Bagó Diána
+36 70 634 5581

Eladó családi ház Kecskemét, 72 000 000 Ft, 80 négyzetméter

72 000 000 Ft
családi ház, 80 négyzetméter
Építőanyag:
Tégla
Egész szobák:
3
Komfort fokozat:
Összkomfort
Fűtés módja:
Hőszivattyú
Ingatlan állapota:
Épülő
Azonosító:
11581461
Értékesítés típusa:
eladó
Ingatlan típusa:
családi ház
Jelleg:
Családi ház
Település:
Kecskemét
Alapterület:
80
Telekterület:
400
Ár:
72 000 000 Ft
Szintek száma:
Földszintes
Fűtés jellege:
Villany
Kor:
Új építésű
Telekterület típusa:
négyzetméter
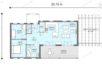
CSAK NÁLUNK KERESSE!!! Kecskeméthez közel, a központtól gyors, új úton, 10 perc alatt megközelíthető részen kínálunk eladó házakat!!! Kiváló elhelyezkedésű, új építésű környéken kínáljuk ezt a 80 m2-es, Nappali + 2 szobás prémium kategóriás családi házat, önálló 400 m2-es telken. Aszfaltozott út készül hamarosan. Egyéb paraméterek: Wienerberger Porotherm X-Therm tégla (+ 40 % hőtartás) 15 cm szigetelés 400 m2 -es összközműves önálló telek hőszivattyús fűtésrendszer padlófűtés prémium minőségű műanyag nyílászárók elektromos alumínium redőnyök riasztó szaniterek 1 millió forintig az árban hideg - meleg burkolatok 8500.-/ m2 ár garancia idő garancia várható átadás szerdéskötéstől számított 10hónap A telekre bruttó 240 m2 -es ház is választható, ármódosítással. AZ ÁR AZ ÉPÍTÉSI TELEK ÁRÁT IS TARTALMAZZA! ​ Az adatok tájékoztató jellegűek! FIGYELEM! Az adatok Megbízónktól kapott információk alapján készültek, pontosságukért fele Az iroda legfrissebb, aktuális kínálatát a HOUSE36 saját weboldalán találja.
https://budapest.ingatlan.hu/elado/haz/kecskemet/72-millio-ft;80-negyzetmeter;3-szoba;villany-futes/11581461