Az értékesítő:
Földi Margit
+36 30 576 9476

Eladó lakás Budapest VII. ker, 88 900 000 Ft, 57 négyzetméter

88 900 000 Ft
lakás, 57 négyzetméter
Építőanyag:
Tégla
Egész szobák:
2
Komfort fokozat:
Összkomfort
Ingatlan állapota:
Azonosító:
11579871
Értékesítés típusa:
eladó
Ingatlan típusa:
lakás
Település:
Budapest VII. ker
Alapterület:
57
Ár:
88 900 000 Ft
Tulajdonviszony:
Saját
Emelet:
1. emelet
Fűtés jellege:
Konvektoros
Kilátás:
udvari
Építési év:
50 évesnél régebbi
Erkély:
Nincs
Pince:
Nincs
Tároló:
Van
Lift:
Van
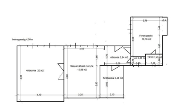
Fedezze fel ezt a belvárosi 57 m²-es, téglaépítésű lakást Budapest szívében, a Király utca és Erzsébet krt. kereszteződésében, a 4-6 villamos Király utcai megállójánál, a volt Grand Royal Szálloda mellett. A körút egyik legszebb szakasza az Andrássy út és az Oktogon közvetlen szomszédságában. A lakás liftes házban a 2. emeleten helyezkedik el, udvari kilátással, így a nyüzsgő városi élet zajától elszigetelt. A helyiségek elosztása 2+1 szoba, ami ideális lehet akár családoknak, akár dolgozó fiataloknak. A körfolyosó utolsó lakása, melyet 2016-ban újítottak fel teljes körűen. Gázkonvektoros fűtés biztosítja a kellemes hőmérsékletet a hidegebb napokon és egy gáz átfolyós vízmelegítő csinál melegvizet. Alacsony fenntartási költségei vannak, éves átalányban 16.000ft rezsi + 12.000ft közösköltség havonta. A társasház rendezett, belső udvara különösen szép és egy saját tároló is tartozik a lakáshoz az épület alagsorában. Az ingatlan eladó, várja új tulajdonosát, aki saját ízlése szerint formálhatja otthonná. Kiváló választás lehet azok számára, akik a város központi részén szeretnének élni mindennapi kényelemmel.
https://budapest.ingatlan.hu/elado/lakas/budapest-vii-ker/89-millio-ft;57-negyzetmeter;3-szoba;tegla-epitesu/11579871