Az értékesítő:
Horváth Renátó
+36 70 587 7080

Eladó lakás Budapest XV. ker, 77 250 000 Ft, 70 négyzetméter

77 250 000 Ft
lakás, 70 négyzetméter
Építőanyag:
Tégla
Egész szobák:
3
Komfort fokozat:
Összkomfort
Ingatlan állapota:
Azonosító:
11579645
Értékesítés típusa:
eladó
Ingatlan típusa:
lakás
Település:
Budapest XV. ker
Alapterület:
70
Ár:
77 250 000 Ft
Tulajdonviszony:
Saját
Emelet:
2. emelet
Fűtés jellege:
Távfűtés
Kilátás:
panorámás
Építési év:
50 évesnél régebbi
Erkély:
Van
Pince:
Nincs
Tároló:
Nincs
Lift:
Van
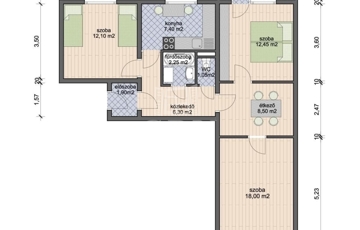
Újpalota egyik legkedveltebb részén, a Páskomliget utcában eladó egy 2. emeleti, 70 m²-es, 3 szobás, jó állapotú panellakás, két erkéllyel. Az ingatlan praktikus elrendezésű: tágas, klimatizált nappali, két külön nyíló hálószoba, konyha, hall, fürdőszoba, valamint külön WC található benne. A nappali az egyik erkéllyel az utcafrontra néz, míg a hálószobák és a konyha csendes, zöld parkra tekintenek, egyikükhöz saját erkély is tartozik. A szobák és a hall laminált parkettával, a többi helyiség járólappal burkolt. A közlekedőben végig beépített gardróbszekrény biztosít elegendő tárolóhelyet. A rendezett lépcsőház és kulturált lakóközösség tovább növelik az ingatlan vonzerejét. A környék kiváló infrastruktúrával rendelkezik: iskola, óvoda, piac, üzletek, valamint több buszjárat is néhány perc sétával elérhető. A lakás fenntartása kedvező – a közös költség mindössze 20.000 Ft, a rezsi kb. 25.000 Ft havonta. Ideális választás családoknak vagy befektetőknek egyaránt.
https://budapest.ingatlan.hu/elado/lakas/budapest-xv-ker/77-millio-ft;70-negyzetmeter;3-szoba;tegla-epitesu/11579645