Az értékesítő:
Nagy Veronika
+36 70 624 0082

Eladó családi ház Környe, 72 900 000 Ft, 62 négyzetméter

72 900 000 Ft
családi ház, 62 négyzetméter
Építőanyag:
Könnyűszerkezetes
Egész szobák:
3
Ingatlan állapota:
Épülő
Azonosító:
11578559
Értékesítés típusa:
eladó
Ingatlan típusa:
családi ház
Jelleg:
Családi ház
Település:
Környe
Alapterület:
62
Telekterület:
1390
Ár:
72 900 000 Ft
Szintek száma:
Földszintes
Fűtés jellege:
Egyéb
Kor:
Új építésű
Telekterület típusa:
négyzetméter
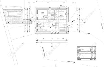
Az Openhouse Tatabánya Ingatlaniroda kínálatában eladó a #177337 hivatkozási számú környei családi ház. Eladó egy vadonatúj könnyűszerkezetes családi ház Környén, 1390 m²-es telken, teljes közművel (víz, villany, gáz, csatorna, internet). Az ingatlan csendes üdülőövezetben található, saját horgásztóval, strandrésszel és zárt üdülőparkkal a Vértes lábánál, Tatabánya és Tata közelében. Főbb jellemzők: Új építésű ház, néhány munkálat van még hátra (a fürdőszoba befejezése, udvar térkövezése, beltéri ajtók elhelyezése a napokban megtörténik) Korszerű hőszivattyús fűtés és padlófűtés minden helyiségben Minőségi kivitelezés, prémium burkolatokkal Teljes közmű (víz, villany, gáz, csatorna, internet) 1390 m²-es, tágas telek rendezett környezetben Könnyűszerkezetes építés korszerű szigeteléssel Csendes, erdőközeli, mégis könnyen megközelíthető elhelyezkedés Zárt üdülőpark, biztonságos beléptetéssel (telefonos nyitás vagy kód) Kiváló közlekedés Tatabánya, Tata, Oroszlány és Komárom irányából is A nagy méretű telek lehetőséget biztosít kertészkedésre, medence vagy terasz kialakítására. A kertben egy 30 m²-es térkövezett autóbeálló is készülőben van, emellett lehetőség van nyári konyha, jacuzzi vagy kerti tároló létrehozására is. Helyiségek: Nappali: Világos, modern, prémium burkolattal – ideális családi élethez és pihenéshez. Konyha: Praktikus, letisztult konyharész, azonnal használható. Fürdőszoba: Modern szaniterekkel előkészítve, végső befejezése folyamatban. Hálószoba: Kényelmes és nyugodt tér a teljes kikapcsolódáshoz. Telek és környezet: - Hatalmas, 1390 m²-es telek – kertészkedésre, pihenésre vagy bővítésre alkalmas. - Rendezett, nyugodt környék közel a természethez. - Saját horgásztó és strandrész az üdülőpark területén. - Tágas tér és panoráma a Vértes lábánál, tóra néző kilátással. Ha felkeltette érdeklődését ez az eladó környei családi ház, vagy bármely más családi ház és bővebb információt szeretne, keressen bizalommal.Hivatkozási szám: #177337 Az Openhouse Tatabánya Ingatlaniroda tagjaként várom Önt az országos hálózatunk teljes kínálatával. A családi ház vásárláshoz hitelt igényelne? Ingyenes hitelközvetítéssel segít Önnek bankfüggetlen hitelszakértőnk. További szolgáltatásainkkal (pl. értékbecslés, energetikai tanúsítvány, jogi háttér) is segítjük Önt a vásárlásban. Az otthon érték. Az ingatlan üzlet. Referencia szám: 177337
https://budapest.ingatlan.hu/elado/haz/kornye/73-millio-ft;62-negyzetmeter;3-szoba;egyeb-futes/11578559