Az értékesítő:
Horváth Boglárka független ingatlanszakértő
+36 30 177 6343

Eladó lakás Tatabánya, 69 990 000 Ft, 50 négyzetméter

69 990 000 Ft
lakás, 50 négyzetméter
Egész szobák:
2
Ingatlan állapota:
Kitűnő
Azonosító:
11578501
Értékesítés típusa:
eladó
Ingatlan típusa:
lakás
Település:
Tatabánya
Alapterület:
50
Ár:
69 990 000 Ft
Tulajdonviszony:
Saját
Emelet:
2. emelet
Fűtés jellege:
Házközponti (egyedi mérővel)
Elhelyezkedés:
Lakópark
Kilátás:
kertre néző
Építési év:
1-5 éves
Erkély:
Van
Kertkapcsolat:
Nincs
Kocsibeálló:
Van
Pince:
Nincs
Tároló:
Nincs
Lift:
Van
Klíma:
Van
Bútorozott:
Részben bútorozott
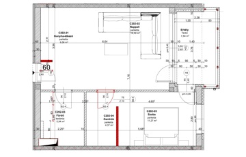
Tatabánya egyik legkedveltebb lakóparkjában – a Gerecse Lakóparkban – eladó ez a gondosan megtervezett, modern, ugyanakkor rendkívül otthonos lakás. Ez a 2020-ban átadott, 50,5 m²-es, második emeleti ingatlan 7,5 m²-es erkéllyel rendelkezik, és minden részletében átgondolt, igényesen kialakított. A lakás elrendezése praktikus és harmonikus: amerikai konyhás nappali, hálószoba, tágas kádas fürdőszoba és külön gardróbhelyiség biztosítja a kényelmet. A hatalmas ablakfelületeknek köszönhetően a terek világosak, barátságosak, a nagy erkélyről pedig a parkosított, zárt udvarra nyílik kilátás – az üvegkorlát még inkább megnyitja a teret a természet felé. A lakás energiahatékonysága kiemelkedő: a társasház napelemrendszerrel, kiváló hőszigeteléssel és saját gázkazánnal rendelkezik, így a rezsi rendkívül alacsony. A belső terek egyedi megoldásokkal, minőségi anyagokkal készültek. Az egyedi tervezésű konyha beépített gépekkel (indukciós főzőlap, sütő, mikro, hűtő, fagyasztó, páraelszívó) a vételár részét képezi. A gardróbszoba mennyezetig érő szekrényekkel és tükörrel felszerelt – minden apró részlet a kényelmet szolgálja. Klíma, redőny (a nappaliban elektromos) és szúnyogháló tovább növeli a komfortérzetet. A lakópark zárt, biztonságos. Csendes környezetben fekszik, mégis minden elérhető közelségben van: üzletek, iskola, gyógyszertár. A buszmegálló egy perc, a vasútállomás néhány perc alatt elérhető gyalogosan. Az autóval közlekedők számra akár a városközpont, akár az autópálya néhány perc távolságban van. A társasház liftes, a lakás teljesen akadálymentesen közelíthető meg, így nemcsak fiatal pároknak, hanem idősebbeknek is ideális választás. Igény esetén a lakópark zárt területén belül parkolóhely is vásárolható (nem része a vételárnak, + 2.500.000 Ft). Egy elegáns, kifinomult, mégis barátságos és otthonos lakás, ahol a modern városi élet kényelme és a nyugalom harmóniája találkozik. Tökéletes választás azok számára, akik Tatabánya egyik legjobb lakókörnyezetében keresnek minőségi otthont.
https://budapest.ingatlan.hu/elado/lakas/tatabanya/70-millio-ft;50-negyzetmeter;2-szoba;nincs-megadva-epitesu/11578501