Az értékesítő:
Lestyán László Józsefné Lakati Melinda
+36 70 455 0967

Eladó családi ház Buzsák, 45 000 000 Ft, 89 négyzetméter

45 000 000 Ft
családi ház, 89 négyzetméter
Építőanyag:
Tégla
Egész szobák:
4
Komfort fokozat:
Összkomfort
Fűtés módja:
Gáz
Ingatlan állapota:
Felújítandó
Azonosító:
11576131
Értékesítés típusa:
eladó
Ingatlan típusa:
családi ház
Jelleg:
Családi ház
Település:
Buzsák
Alapterület:
89
Telekterület:
1578
Ár:
45 000 000 Ft
Szintek száma:
Földszintes
Fűtés jellege:
Cirkó
Kor:
50 évesnél régebbi
Telekterület típusa:
négyzetméter
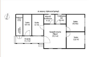
A Balaton déli partjától 10 km-re, BUZSÁK község központjában ELADÓ egy családi ház nyári konyhával, garázzsal. Az ingatlanon gazdálkodásra, állattartásra is alkalmas épületek vannak. ( felújítandó vagy bontandó ) A téglaépítésű ház felújítása elkezdődött: külső vakolat és színezés, igényes, egyedi bejárati ajtók, burkolatok, műanyag ablakok. Főbb jellemzők: - közel 90 m2 lakótér hangulatos verandával ( 11,5 m2 ) - nappali-étkező-konyha központi helyen - 2 nagyobb és 2 kisebb szoba - hangulatos, de felújítandó nyári konyha - 2 cserépkályha és cirkós központi fűtés lemezradiátorokkal - hőszigetelt bukó-nyíló ablakok ( új ) - pince és falépcsős padlásfeljáró - istálló, pajta, külső tároló, régi magtár - ideális önellátásra is - még igény szerint alakítható! Iskola, óvoda, háziorvosi ellátás, posta, boltok, vendéglő, turisztikai látogatóhelyek ( Tájház...stb ) Csiszta gyógyfürdő található a településen. Buzsák egyedülálló, még élő hagyományokkal rendelkező ékszerdoboz a Balaton déli partján. Közel van a Magyar Tengerhez, természetközeli, a városi élettől való kiszakadásra alkalmas. Amennyiben felkeltette az érdeklődését az ingatlan, kérem, hívjon, írjon a további információkért! Referencia szám: M299382
https://budapest.ingatlan.hu/elado/haz/buzsak/45-millio-ft;89-negyzetmeter;5-szoba;cirko-futes/11576131