Az értékesítő:
Nagy Veronika
+36 70 624 0082

Eladó lakás Komárom, 69 354 000 Ft, 68 négyzetméter

69 354 000 Ft
lakás, 68 négyzetméter
Építőanyag:
Tégla
Egész szobák:
3
Komfort fokozat:
Összkomfort
Ingatlan állapota:
Épülő
Azonosító:
11575294
Értékesítés típusa:
eladó
Ingatlan típusa:
lakás
Település:
Komárom
Alapterület:
68
Ár:
69 354 000 Ft
Emelet:
2. emelet
Fűtés jellege:
Hőszivattyú
Kilátás:
udvari
Építési év:
Új építésű
Kocsibeálló:
Van
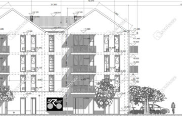
Az Openhouse Tatabánya Ingatlaniroda kínálatában eladó a #171477 hivatkozási számú komáromi társasházi lakás. Az Openhouse Tatabánya Ingatlaniroda kínálatában eladó a #170732 hivatkozási számú komáromi társasházi lakás. Amennyiben Ön új építésű lakás vásárlásán gondolkodik, NE döntsön amíg ezt a lehetőséget nem nézte meg!!! Komáromban épülő új 15 lakásos társasház mely 43nm-67nm-es kialakításúak, 15 tároló egységgel, erkéllyel (egy lakás két erkélyes kivitelezésű)és kültéri térfelszíni gépjármű parkolóval tervezett ingatlan a város központhoz közeli zöldövezeti részén helyezkedik el. Építészeti tervek szerint az új modern építőanyagoknak, korszerű fűtésrendszernek, a kiváló hőtechnikai jellemzőknek köszönhetően alacsony rezsiköltség várható. A garzon lakástól a két hálószobás otthonokig itt minden vásárlói igényt kielégítő társasházi lakást megtalál. Az eladó új építésű komáromi társasházi lakás jellemzői: - tervrajzi megjelölés: P/8 (l.-3.lakás) - építés éve: 2024. - fekvése: Észak - lakás alapterülete: 67.34m2 - erkély alapterülete: 4.86m2 - erkély alapterülete: 4.86m2 - tároló: 1.5m2 Belső elrendezése: előtér, nappali-konyha-étkező, hálószoba, fürdőszoba, erkély. Az eladó új építésű komáromi társasházi lakás leírása: Alapozás: - az épület alapozása a mértékadó terhek szerint méretezett kútalapozás - alapozási mélység statikai méretezés szerint -3,00 m Tartószerkezet: - az épület teherhordó szerkezete a földszinti épületrészen 38,00 cm égetett kerámia falazóelemek VB pillér merevítésekkel - merevítő vasbeton pillérek elhelyezése statikai tervnek megfelelően. - az épület további szintjeinek teherhordó szerkezete 38,00 cm égetett kerámia falazóelem - az épület szintközi födémjei vasbeton szerkezetek - a vasbeton födémek vastagsága és vasalása statikai tervnek megfelelően - az épület szintjei közötti téráthidaló lépcsői vasbeton szerkezetek - a vasbeton lépcsők kialakítása és vasalása statikai tervnek megfelelően Homlokzat: - homlokzatkialakítás homlokzati hőszigetelés DRYVIT rendszerrel CEMIX homlokzati színvakolattal Válaszfalak: - az épületben válaszfalak kialakítása 10,00 cm POROTHERM válaszfallap rendszerrel történik - a válaszfalak egységesen 10,00 cm vtg. falazott falak - az épületben a lakáselválasztó falak kialakítása 20,00 cm BAKONYTHERM Zaj Stopp 20 N + F hanggátló téglával történik - a helyiségek glettelt, festett falburkolattal lesznek kialakítva Padlóburkolatok: - fürdőszoba: kerámia lap, erkély: fagyálló kerámia, a lakások egyéb helyiségei: laminált parketta Nyílászárók: - az nyílászárók 3 réteg hőszigetelő üvegezésű REHAU műanyag profilrendszerű szerkezetek - üvegezés U minimum 1,1 W/m2K, teljes nyílászáró U minimum 1,4 W/m2K - belső ajtók: furatolt faforgácslap ajtók átfogókkal, festett kivitelben Fűtés, meleg víz: - az épületben a fűtést, levegő-víz hőszivattyús rendszer biztosítja mely padló fűtést és fan-coilokat működtet Elektromos ellátás: - áramellátás 1x32 A nappali, H tarifa a hőszivattyú részére villamos hálózat kapcsolókkal és dugaljakkal épül, lámpa előkészítés készül Tető és víz elvezetés: - a tetőfedés anyaga hagyományos cserépfedés Terrán Zenit Mars ClimaControl cserép és kiegészítői a szükséges lécezés, ellenlécezés és fóliázás kialakításával Terrán Zenit Mars ClimaControl TÉGLA színben - az esővíz külső elvezetésű, az esőcsatorna rendszer PREFA rendszerű négyszög keresztmetszettel - PREFA P. 10. matt világosszürke alumínium négyszögszelvényű ereszcsatorna 400 Gyengeáramú szerelés: - kaputelefon hálózat, TV hálózat, internet hálózat szolgáltató PICK-UP Kft. Parkolás: - vásárolható térkő felületű térfelszíni beálló (lakásonként 1db.) A MEGADOTT ÁR KULCSRAKÉSZ ÁLLAPOTBAN ÉRTENDŐ. Ingatlan ára: 60.606.000 Ft Tároló ára: 1.350.000 Ft Erkély: 8.748.000 Ft Parkoló ára: 1.500.000 Ft Összesen: 72.204.000 Ft Közelben megtalálható élelmiszer bolt, bölcsőde, óvoda, közintézmények, általános és középiskola, illetve pár perces gyaloglásra buszmegálló. Az M1-es autópálya, a Magyar-Szlovák határátkelő valamint az 1-es számú főútvonal néhány perc alatt elérhető. Érdeklődés esetén, bővebb információkért várom szíves jelentkezését, Nagy Veronika Értékesítő Ha felkeltette érdeklődését ez az eladó komáromi társasházi lakás, vagy bármely más társasházi lakás és bővebb információt szeretne, keressen bizalommal.Hivatkozási szám: #171477Az Openhouse Tatabánya Ingatlaniroda tagjaként várom Önt az országos hálózatunk teljes kínálatával.A társasházi lakás vásárláshoz hitelt igényelne? Ingyenes hitelközvetítéssel segít Önnek bankfüggetlen hitelszakértőnk.További szolgáltatásainkkal (pl. értékbecslés, energetikai tanúsítvány, jogi háttér) is segítjük Önt a vásárlásban.Az otthon érték. Az ingatlan üzlet. Referencia szám: 171477
https://budapest.ingatlan.hu/elado/lakas/komarom/69-millio-ft;68-negyzetmeter;3-szoba;tegla-epitesu/11575294