Az értékesítő:
Butkai Ottó
+36 70 967 5577

Eladó családi ház Kazár, 11 900 000 Ft, 93 négyzetméter

11 900 000 Ft
családi ház, 93 négyzetméter
Építőanyag:
Tégla
Egész szobák:
3
Ingatlan állapota:
Felújítandó
Azonosító:
11574800
Értékesítés típusa:
eladó
Ingatlan típusa:
családi ház
Jelleg:
Családi ház
Település:
Kazár
Alapterület:
93
Telekterület:
1300
Ár:
11 900 000 Ft
Fűtés jellege:
Konvektoros
Terasz:
Nincs
Erkély:
Nincs
Beépíthető tetőtér:
Nincs
Melléképület:
Nincs
Pince:
Van
Klíma:
Nincs
Telekterület típusa:
négyzetméter
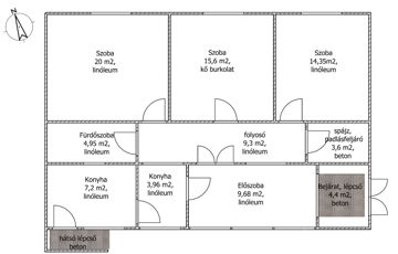
Most alkalmi áron eladó Kazáron, egy nagyon jó helyen lévő, nagy, lapos telekkel rendelkező családi ház. A ház régóta nem lakott, kívül és belül felújításra szorul, ezért is ilyen kedvező az ára. Az alapterülete 93 négyzetméter, azaz a falusi CSOK támogatás igényelhető rá, akár három gyermekkel is, így csekély saját erővel is megszerezhető! Az ingatlan összközműves, vezetékes gáz, elektromos áram, és vezetékes víz bekötéssel rendelkezik, csatlakozik a szennyvízhálózatra, továbbá elérhető az optikai Internet hálózat is. jelenleg gázkonvektoros fűtésű, és a melegvíz ellátását is átfolyós, gázüzemű vízmelegítő szolgáltatja. A szobái tágasak. A tető ácsolata új, a héjazat sajnos javításra szorul, emiatt több helyen beázási foltok vannak a mennyezeten. Az udvarra gépjárművel is be lehet állni. A ház alatt két nagy pince is van. Egy alapos felújítás után a ház a jelenlegi vételárának két-háromszorosát is megéri, mert az alapterülete nagy, a hozzá tartozó telek pedig kiváló adottságú. Aki nem ijed meg egy kis munkától, annak kiváló lehetőség, akár saját otthon, akár befektetés céljára! Amennyiben felkeltettem az érdeklődését, hívjon a 36 70 423 1304-es telefonszámon! Kazár az egyik leghíresebb település Nógrád Vármegyében. Az évenkét rendezett Laskafesztivál az egész országból vonzza a közönséget. Nagy, jó hírű iskolája van, szép faluháza, gazdag múltja, valamint itt található az országos hírű Riolittufa is, számtalan egyéb látnivaló mellett. A megyeszékhely mindössze tizenöt perc alatt elérhető autóval, de rendszeres autóbuszjárat is közlekedik a település és Salgótarján között. (További képekért és információkért kérem hívjon!)
https://budapest.ingatlan.hu/elado/haz/kazar/12-millio-ft;93-negyzetmeter;3-szoba;konvektoros-futes/11574800