Az értékesítő:
Vastag Ákos
+36 30 311 2069

Eladó lakás Siófok, 180 000 000 Ft, 115 négyzetméter

180 000 000 Ft
lakás, 115 négyzetméter
Építőanyag:
Tégla
Egész szobák:
4
Komfort fokozat:
Összkomfort
Ingatlan állapota:
Kitűnő
Azonosító:
11574598
Értékesítés típusa:
eladó
Ingatlan típusa:
lakás
Település:
Siófok
Alapterület:
115
Ár:
180 000 000 Ft
Fűtés jellege:
Hőszivattyú
Erkély:
Van
Erkély mérete:
70.00 m2
Kert mérete:
3.00 m2
Kertkapcsolat:
Nincs
Pince:
Nincs
Lift:
Nincs
Klíma:
Nincs
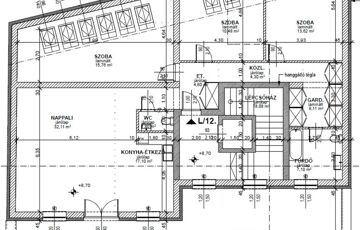
Új építésű, prémium minőségű lakások Siófok belvárosában! Kiváló elhelyezkedés, magas műszaki tartalom és modern, energiatakarékos megoldások – mindez elérhető most Siófok szívében! Az új építésű 12 lakásos társasházban már csak 4 lakás érhető el! Ne maradjon le róla! Elérhető lakások: 1. lakás Földszint 56.26 m2 nettó lakótér - 75.600.000 Ft 2. lakás Földszint 48.25 m2 nettó lakótér + 14.00 m2 terasz - 73.900.000 Ft 3. lakás Földszint 41.67 m2 nettó lakótér + 14.00 m2 terasz - 65.000.000 Ft 4. lakás 1. emelet - ELKELT 5. lakás 1. emelet - ELKELT 6. lakás 1. emelet - ELKELT 7. lakás 1. emelet - ELKELT 8. lakás 2. emelet - ELKELT 9. lakás 2. emelet - ELKELT 10. lakás 2. emelet - ELKELT 11. lakás 2. emelet - ELKELT 12. lakás III. emelet 115.19 m2 nettó lakótér + 69.61 m2 terasz - 180.000.000 Ft Mindegyik bármikor megtekinthető! Ez a hirdetés a 12. lakás képeit és alaprajzát tartalmazza! A lakás főbb paraméterei: - Nettó alapterület: 115,19 m² + 69,61 m² saját tetőterasz, amely közvetlenül a belső udvarra néz, látszódik róla a víztorony is - Elrendezés: amerikai konyhás nappali, 3 hálószoba, 2 fürdőszoba, közlekedő, gardróbszoba, előtér és tetőterasz - Egyedüli lakás a legfelső szinten, nincs szomszéd! - Ideális választás akár állandó lakhatásra, nyaralónak, vagy befektetésnek A projekt főbb jellemzői: - Elhelyezkedés: Siófok belvárosa, a Balaton mindössze kb. 800 méterre - Földszint + 3 emelet, liftes épület, korszerű építési technológiával - 3 földszinti, 4-4 első és második emeleti, valamint egy zárószinti penthouse lakás - A földszinti lakások közül több kertkapcsolatos, az emeletiek mind erkéllyel rendelkeznek - Modern, hangulatos belső udvar, zárt közösségi térrel Műszaki tartalom és felszereltség: - Tégla falazat, 15 cm hőszigetelt homlokzat - Hőszivattyús fűtés-hűtés H-tarifás támogatással - Padlófűtés és mennyezeti hűtés minden lakásban - Központi gázkazán a melegvíz-ellátáshoz, 500 literes tárolóval - Napelemes rendszerrel felszerelt épület - Háromrétegű üvegezésű, hő- és hangszigetelt nyílászárók - Biztonsági bejárati ajtók - Lakásonként külön szabályozható termosztát - Lift Lakástípusok: - A kínálatban megtalálhatók kisebb, nappali + 1 hálós lakások, valamint tágasabb, akár 2-3 hálós családi otthonok is. - A legtöbb lakás déli tájolású erkéllyel rendelkezik, így világos és napfényes tereket biztosít egész évben. - Az egyik földszinti lakás 42 m² alapterületű, amely irodai hasznosításra is kiváló választás lehet. Parkolás és tárolás: - A ház déli oldalán 24 teremgarázs-beálló és zárt garázs áll rendelkezésre, opcionálisan megvásárolható tárolóhelyiségekkel. További előnyök: - Kiváló közlekedési és infrastrukturális adottságok - A belváros és a Balaton-part néhány perc sétával elérhető - Minőségi kivitelezés, modern stílus és gondosan megtervezett lakáselrendezések - Akár 3%-os kamatozású kedvezményes hitellel is megvásárolható Ne habozzon! Tegye meg az első lépést álmai ingatlanának megszerzése felé! Jöjjön el egy megtekintésre, és győződjön meg róla Ön is! Az ingatlan előzetes egyeztetéssel a hét minden napján megtekinthető. Amennyiben kérdése van, vagy időpontot egyeztetne, hívjon még ma! Kár lenne kihagyni ezt a remek lehetőséget! (További képekért és információkért kérem hívjon!)
https://budapest.ingatlan.hu/elado/lakas/siofok/180-millio-ft;115-negyzetmeter;5-szoba;tegla-epitesu/11574598