Az értékesítő:
Nagy Zsolt
+36 30 347 4765

Eladó családi ház Kecskemét, 140 000 000 Ft, 250 négyzetméter

140 000 000 Ft
családi ház, 250 négyzetméter
Építőanyag:
Tégla
Egész szobák:
5
Fűtés módja:
Gáz
Ingatlan állapota:
Azonosító:
11574531
Értékesítés típusa:
eladó
Ingatlan típusa:
családi ház
Jelleg:
Családi ház
Település:
Kecskemét
Alapterület:
250
Telekterület:
539
Ár:
140 000 000 Ft
Szintek száma:
Földszintes
Fűtés jellege:
Cirkó
Kor:
21-50 éves
Telekterület típusa:
négyzetméter
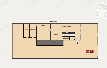
Különleges lehetőség Kecskemét belvárosában! 250 m² lakóterű családi ház – 539 m²-es telekkel, melléképülettel és kiváló adottságokkal eladó! A város szívében, mégis csendes környezetben kínáljuk megvételre ezt a tágas, 5 szobás, kétszintes családi házat, amely igazi otthon lehet nagycsaládosoknak vagy akár vállalkozásra, rendelőnek, irodának is ideális választás. Főbb jellemzők: Lakótér: 250 m² Telek területe: 539 m² Szobák száma: 5 + konyha-étkező Fürdőszobák: 2 WC-k: 2 Építés éve: 1998, felújítva: 2015 Fűtés: gáz cirkó rendszer Állapot: jó állapotú, azonnal költözhető Melléképület: tárolásra alkalmas, 18 m² Parkolás: gépkocsi beálló Tetőtér beépített, további bővítésre alkalmas ​Telek és beépíthetőség: Beépíthetőség: 50% Megengedett építménymagasság: 9,5 m Ez kiváló lehetőség akár bővítésre, új épület kialakítására vagy befektetési célra. Elhelyezkedés: Belvárosi lokáció, minden elérhető közelségben: Buszmegálló, bolt 50 méter Iskola/óvoda: 100 méter Mégis nyugodt, családias környezet, rendezett utcafronttal. Figyelem az adatlap megbízónktól kapott adatok alapján készült, pontosságáért felelősséget nem tudunk vállalni!
https://budapest.ingatlan.hu/elado/haz/kecskemet/140-millio-ft;250-negyzetmeter;5-szoba;cirko-futes/11574531