Az értékesítő:
Meszesánné Márki Ildikó
+36 20 388 3540

Eladó telek/földterület Domony, 15 800 000 Ft, 910 Négyzetméter

15 800 000 Ft
telek/földterület, 910 Négyzetméter
Azonosító:
11573733
Értékesítés típusa:
eladó
Ingatlan típusa:
telek/földterület
Jelleg:
Belterület
Település:
Domony
Telekterület:
910
Ár:
15 800 000 Ft
Telekterület típusa:
Négyzetméter
Víz:
Telken belül
Villany:
Telken belül
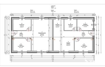
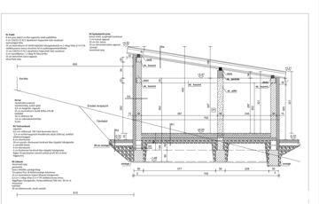
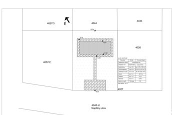
Szeretne a város zajától távol, mégis könnyen megközelíthető helyen élni? Akkor ez az Ön számára ideális lehetőség! Eladásra kínálunk egy 910 m²-es, kiváló állapotban lévő zárt kertet Erdő melletti környezetben, Domonyvölgy csendes utcájában, a Napfény utcában. Fölötte már csak egy zsákutca van. Az ingatlan egy gyönyörű zöld övezetben helyezkedik el, ahol nyugalom és természetközeli élet várja. A zártkert művelési ág alóli kivonása megtörtént. A telken belül víz és áram is megtalálható. Az ingatlan üdülőterület, beépítési feltétele a részleges közművesség, a víz és a villany telken belüli bekötése megtörtént. Beépítési mód: szabadonálló Kialakítható legkisebb telekméret: 550 m2 Legnagyobb beépítettség: 15 % Legnagyobb építménymagasság: 4,5 m Zöldfelület legkisebb mértéke : 60 % legfeljebb két üdülőegységes épületek helyezhetők el. előkert minimum: 5 m oldalkert: minimum 3 m hátsókert minimum 6 m gépkocsi beálló 1 / db lakás A telek panorámás, lejtése -25%. A telek utcafronti szélessége 25 m, körbe kerített. A telken a lavírsík elkészült és az építési terület rendezése. Ez szolgál kiindulópontként a tereprendezésnél. Az építési terület fölötti támfal megépült. A telek beépítésére van egy tervezeti elképzelés 2 db üdülőegységre bruttó 136 m2. Bruttó 64,30 m2 lakásonként, nettó 55 m2 vagy 110 m2 nettó 1 lakóegység. megközelítése egész évben jól járható, az utca sarkáig aszfaltos ,az utcán szórt aszfaltos. Egyre többen választják állandó lakhatásra is. A környék kitűnő közlekedési lehetőségekkel rendelkezik, így pár perces autó úttal egyszerűen elérhetőek a szükséges szolgáltatások és bevásárlási lehetőségek. A környéken sok szabadidős tevékenységre van lehetőség, túrázás, kirándulás, séta, horgászás, fürdőtó, lovaglás, étterem büfé az útvonalon megtalálható. Ez az ingatlan tökéletes választás lehet mindazok számára, akik szeretnének elvonulni a hétköznapok forgatagától, miközben a modern életvitel minden kényelmét élvezhetik. Ne hagyja ki ezt a remek lehetőséget! Ha felkeltettük érdeklődését, kérjük, lépjen velünk kapcsolatba további információkért és időpont egyeztetésért! (További képekért és információkért kérem hívjon!)
https://budapest.ingatlan.hu/elado/telek_foldterulet/domony/16-millio-ft;910-negyzetmeter;epitesi-telek-besorolas;van-kozmu/11573733