Az értékesítő:
Szabolcsi Zoltán
+36 70 256 0693

Eladó családi ház Nyírpazony, 82 000 000 Ft, 105 négyzetméter

82 000 000 Ft
családi ház, 105 négyzetméter
Építőanyag:
Tégla
Egész szobák:
3
Ingatlan állapota:
Épülő
Azonosító:
11570855
Értékesítés típusa:
eladó
Ingatlan típusa:
családi ház
Jelleg:
Családi ház
Település:
Nyírpazony
Alapterület:
105
Telekterület:
700
Ár:
82 000 000 Ft
Fűtés jellege:
Geotermikus
Kor:
1-5 éves
Telekterület típusa:
négyzetméter
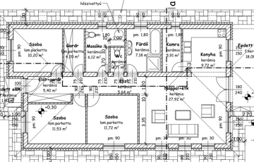
Nyírpazony központjában ÚJ ÉPÍTÉSŰ ÖNÁLLÓ téglaépítésű, 105 nm-es 3 szoba + nappali, 2 wc + fürdő, gardrób, választható járólap és laminált parketta burkolattal, 3 réteg üvegezésű műanyag nyílászárókkal, igény esetén redőnyözve, hőszivattyús padló fűtéssel családi ház, 15 cm -es homlokzati, 30 cm-es födém szigeteléssel ellátva, 700 nm-es telken, igény esetén garázzsal, minőségi és leinformálható építési vállalkozótól eladó.Az ingatlan azonosítója: 98978Érdeklődni: +36702560693 Az ingatlan azonosítója: 98978 Érdeklődni: +36702560693
https://budapest.ingatlan.hu/elado/haz/nyirpazony/82-millio-ft;105-negyzetmeter;3-szoba;geotermikus-futes/11570855