Az értékesítő:
Fodor Norbert
+36 20 943 0187

Eladó családi ház Szada, 124 500 000 Ft, 116 négyzetméter

124 500 000 Ft
családi ház, 116 négyzetméter
Építőanyag:
Tégla
Egész szobák:
4
Komfort fokozat:
Összkomfort
Ingatlan állapota:
Kitűnő
Azonosító:
11563005
Értékesítés típusa:
eladó
Ingatlan típusa:
családi ház
Jelleg:
Családi ház
Település:
Szada
Alapterület:
116
Telekterület:
950
Ár:
124 500 000 Ft
Kor:
Új építésű
Terasz:
Van
Telekterület típusa:
négyzetméter
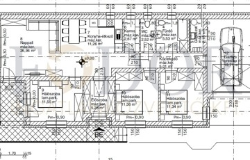
Kivételes Ajánlat! A megfelelő otthon, a nyugalom záloga Fodor Ingatlanközvetítő kft kínálatában!!! Szada, Várdomb részén csendes mellékutcában kínálok eladásra egy Újépítésű magas műszaki tartalommal épülő 1 db bruttó 116 nm-es nappali + 3 szobás, földszintes, garázzsal épülő családi házat. A 2025-es évi elvárásoknak megfelelően megújuló energiaként Hőszivattyúval, amely H-tarifás villanyórára lesz csatlakoztatva. Szobákban, konyhában, nappaliban, többi helyiségben padlófűtés, fürdőszobában törölköző szárítós radiátor. A ház teljesen körbe napozott, (DNY) tájolásának köszönhetően. Kellemes terei, elegáns megjelenése teszi egyedivé ezt a családi otthont. A 950 nm-es telekre 1 db földszintes családi ház kerül megépítésre. Jelen állapotában az építkezés, folyamatosan halad. Foglalja le, és kövesse nyomon leendő háza épülését alakítsa belső elrendezését saját igényei szerint. • Falazat: Phorotherm 30-as tégla • Szigetelés: homlokzaton 15 cm-es Grafitos hőszigetelő rendszer • H-tarifás villanyóra • Vasbeton födém • Nyílászárók: fehér műanyag 6 kamrás 3 rétegű üvegezéssel • Áramellátás 3x20 Amper • Hőszivattyú padlófűtéssel • antracit beton cserép Tulajdonságok: • amerikai konyhás világos nappali • 3 db hálószoba • 1 dbfürdő / 2wc • Saját privát telekterület !!! • Riasztó rendszer vezetékelve • elektromos kapu előkészítés Ha Szadán egy kincset keres megtalálta!!! Várható Átadás: 2025.III. negyedév KÖRNYÉK: Szada, Budapesttől 30 km-re található, a már beépült Várdomb lakóövezet közelében. A lakónegyed kiváló közlekedési adottságokkal bír, mind a tömegközlekedést (buszmegálló 2 percre) mind a gépjárművet használók könnyen elérhetik a környező településeket vagy a fővárost is. Bevásárlóközpont a közvetlen közelben, csak úgy, mint a virágbolt, a kozmetika, a zöldséges, pék, gyalogosan is könnyen megközelíthetők. Babaváró támogatás, Csok Plusz, kamattámogatott hitel igénybe vehető. A hirdetésben szereplő vételár a kulcsrakész állapotra vonatkozik. Burkolatok, szaniterek, beltéri ajtók választhatóak. IRODÁNK INGYENES HITEL ÜGYINTÉZÉSSEL, TANÁCSADÁSSAL, SZÁMOS BANK AJÁNLATÁVAL ÉS AZ ÚJ CSOK FOLYÓSÍTÁSÁVAL VÁRJA ÜGYFELEIT.
https://budapest.ingatlan.hu/elado/haz/szada/125-millio-ft;116-negyzetmeter;4-szoba;nincs-megadva-futes/11563005