Az értékesítő:
Giczi Andrea
+36 70 412 4351

Eladó családi ház Budapest III. ker, 222 500 000 Ft, 130 négyzetméter

222 500 000 Ft
családi ház, 130 négyzetméter
Egész szobák:
4
Ingatlan állapota:
Átlagos
Azonosító:
11489606
Értékesítés típusa:
eladó
Ingatlan típusa:
családi ház
Jelleg:
Ikerház
Település:
Budapest III. ker
Alapterület:
130
Telekterület:
400
Ár:
222 500 000 Ft
Terasz:
Nincs
Erkély:
Van
Melléképület:
Nincs
Pince:
Nincs
Parketta:
Nincs
Kábel TV:
Nincs
Telekterület típusa:
négyzetméter
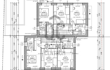
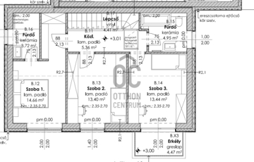
Álmai otthona várja Aranyhegyen! – Új építésű, modern ikerház fél eladó Tapasztalt fejlesztő kínál eladásra Aranyhegyen egy új építésű, 4 szobás (nappali + 3 hálószoba) ikerház felet magas műszaki tartalommal, sík, kizárólagos használatú, teljesen szeparált telekrésszel. Az egyedi adottságoknak köszönhetően a kínált ingatlan olyan, mintha önálló családi házat venne. Az ingatlan Aranyhegy közepén, egy már teljesen kiépült, szinte kizárólag új építésű házakkal körülvett lakókörnyezetben helyezkedik el, így ez az utolsó beépítetlen telek a környéken! A lakótér mérete nettó 118,5m2, amely tökéletes elosztást kínál. A földszinten tágas nappali-konyha-étkező, előtér, fürdő és egy háztartási helyiség, míg az emeleten 3 hálószoba és 2 fürdőszoba kap helyet a mellékelt alaprajzok szerinti ideális elrendezésben. A nappaliból leválasztva akár egy 5. szoba is kialakítható eseti igény szerint. Ezen kívül az eladásra kínált ingatlan részét képezi még egy 14nm-es kertre néző terasz, illetve egy 4,5nm-es emeleti erkély panorámás kilátással, valamint a 2db kényelmes méretű gépkocsi udvari beálló. Energiatakarékos, környezettudatos kialakítás: Az ingatlan alapesetben BB energetikai besorolással rendelkezik, azonban napelemek telepítésével AA++ kategóriára fejleszthető – garantált energiatakarékosság és fenntarthatóság! Kiemelkedő műszaki tartalom: Monolit vasbeton födém, kerámia falazat; Hőtechnikailag méretezett grafitos hőszigetelés; Háromrétegű nyílászárók; Levegő-víz hőszívattyús, energiatakarékos hűtés-fűtési rendszer – mennyezet hűtés-fűtés, padlófűtés; Motoros redőnyök szúnyoghálóval; Magas minőségű hideg- és melegburkolatok, szaniterek, csaptelepek és belső nyílászárók, motoros kapu videó kaputelefon durva tereprendezés Az ár kulcsrakész állapotra vonatkozik. Szolgáltatások a közelben: élelmiszerbolt, pékség, játszótér, kávézó, kutyafuttató Tömegközlekedés: A 219-es és 160-as buszjáratok megállói 5-10 perc sétatávolságon belül Átadás várható ideje: 2026 II. félév Teljes körű ügyintézéssel várom a hívását a hét minden napján!
https://budapest.ingatlan.hu/elado/haz/budapest-iii-ker/223-millio-ft;130-negyzetmeter;4-szoba;nincs-megadva-futes/11489606