Az értékesítő:
Böszörményi Krisztina
+36 20 400 4014

Eladó családi ház Dabas, 79 000 000 Ft, 84 négyzetméter

79 000 000 Ft
családi ház, 84 négyzetméter
Egész szobák:
3
Komfort fokozat:
Összkomfort
Ingatlan állapota:
Átlagos
Azonosító:
11385049
Értékesítés típusa:
eladó
Ingatlan típusa:
családi ház
Jelleg:
Ikerház
Település:
Dabas
Alapterület:
84
Telekterület:
300
Ár:
79 000 000 Ft
Fűtés jellege:
Cirkó
Terasz:
Van
Erkély:
Nincs
Melléképület:
Nincs
Pince:
Nincs
Parketta:
Nincs
Kábel TV:
Nincs
Telekterület típusa:
négyzetméter
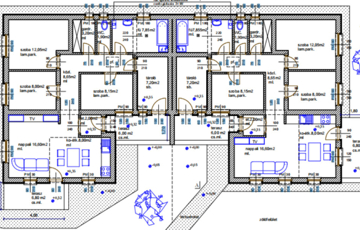
Dabason, rendezett környezetben, aszfaltozott utcában eladásra kínálok egy 2 lakásos ikerházat. Az épületek belső elosztása: amerikai konyhás nappali, 3 szoba, fürdőszoba, toalett, gardrób, közlekedő. A lakásokhoz külön-külön 2-2 terasz kapcsolódik,melyek 6-6 m2 tesznek ki. Az ingatlanok fűtése kondenzációs gázkazánokkal történik, illetve 2 klíma is rendelkezésre áll lakásonként. A hátsó lakáshoz nettó 300 m2-es kert tartozik, az első lakáshoz pedig nettó 200 m2-es, mely 67.5 millióért vásárolható meg. A várható átadás: 2024 december. Jelenleg az alapozás készült el. Megtekinthető: Böszörményi Krisztina 06204004014
https://budapest.ingatlan.hu/elado/haz/dabas/79-millio-ft;84-negyzetmeter;4-szoba;cirko-futes/11385049