Eladó családi ház Iregszemcse 28 900 000 Ft

Leírás

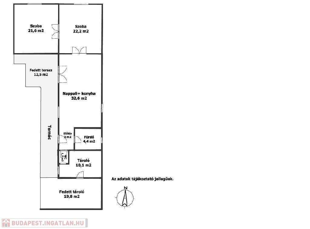
Eladó családi ház Iregszemcsén. Nyugalom, tér és lehetőségek a Balaton közelében!
Tolna megye kedvező fekvésű településén, Iregszemcsén, a Balatontól mindössze 30 km-re, a településközpont közelében kínálunk eladásra egy részben felújított, 85 m2 alapterületű családi házat, amely tökéletes választás állandó otthonnak, nyaralónak vagy akár befektetésnek is!

Amit kínál ez az ingatlan:
Világos, tágas terek , 2 kényelmes szoba, amerikai konyhás nappali, bővíthető elrendezés.
Modern, beépített konyha gépekkel és konyhabútorral, melyek az ár részét képezik.
Hangulatos fedett terasz és tornác, amely ideális reggeli kávézásokhoz, pihenéshez.
Új tető és új utcafronti műanyag nyílászárók, hosszú távú megtakarítást jelentő felújítások.
Elektromos hálózat nagy része felújított.
Fűtési lehetőségek: elektromos fűtőpanel + kályha.
Új bojler beépítve, a fürdőszoba és mellékhelyiség felújítása az új tulajdonos ízlésére vár.
Fedett tároló vagy gépkocsibeálló, amely praktikus, többfunkciós térként használható (akár lakószobává is alakítható).

Külső adottságok:
Sík, jól hasznosítható telek, a végében egy tároláshoz tökéletes pincével.
Központi elhelyezkedés,pár perces sétára minden fontos szolgáltatás elérhető.

Ideális választás mindazoknak, akik vidéki környezetben, de jó közlekedéssel keresnek otthont vagy nyaralót, esetleg befektetés céljából vásárolnának.
Ne hagyja ki ezt a kivételes lehetőséget! Kérjen időpontot megtekintésre még ma!

Referencia szám: M311643

Családi ház részletei

Ár: 28 900 000 Ft
Méret: 85 négyzetméter
Azonosító: 11566183
Irodai azonosító: M311643-5038558
Telek: 605 négyzetméter
Ingatlan állapota:
Jelleg: családi ház
Építőanyag: Vegyes
Fűtés jellege: Villany
Fűtés módja: Villany
Komfort fokozat: Komfort
Kor: 50 évesnél régebbi
Szintek száma: Földszintes
Egész szobák: 3

Egyéb jellemzők

  • Garázs

Térkép


Így keressen budapesti ingatlant négy egyszerű lépésben. Csupán 2 perc, kötelezettségek nélkül!

Szűkítse a budapesti ingatlanok
listáját
Válassza ki a megfelelő
budapesti ingatlant
Írjon a hirdetőnek
Várjon a visszahívásra