Eladó családi ház Debrecen 369 000 000 Ft

Leírás

Eladó modern luxusház, közvetlen a Nagyerdő mellett, Debrecen legszebb környékén.
Ennek az ingatlannak minden részlete a modern luxust és a kényelmet tükrözi!


Debrecen kedvelt kertvárosi részén, kitűnő fekvéssel, ELADÓ egy exkluzív, EXTRA MINŐSÉGŰ 5 szoba nappalis ikerház, szép rendezett kerttel és számos kényelmi extrával.




FŐBB MŰSZAKI TARTALOM:

-Porotherm tégla falazat 30 cm + 20 cm grafitos Porotherm szigetelés,
-A++ energetikai besorolás, a napelemrendszernek köszönhetően villamosenergiából önellátó épület,
-hőszigetelt 3 rétegű nyílászárók,
-minden nyílászárón elektromos mozgatású redőny vagy zsalúzia,

-minden nyitható nyílászárón szúnyogháló,
- háromrétegű hőszigetelő üvegezés,
-összesen 4 db, különböző méretű és elhelyezésű felülvilágító ablak,
- Daikin Altherma hőszivattyú (16 kW), padló-,fal-,mennyezet - hűtés/fűtés,
-fatüzelésű kandalló, mely az esztétikai élményen és a hangulatán túl, funkcionálisan is alkalmas akár önálló fűtésre is (SCHIEDEL KINGFIRE kandalló és kémény rendszer)
-napelem rendszer 16,4 kW, Huawei wifi-s inverterrel (applikáción keresztül felügyelhető),
-3x32 A,
-központi szellőzőrendszer,

-szobánként egyedileg állítható hőmérséklet Rehau okos thermosztátokkal,
-BWT vízlágyító,
-BWT ivóvízszűrő rendszer,
-Hörmann kapuk és garázsajtó,
-Hoppe bejárati ajtó újlenyomatolvasóval,
-mennyezeti bevilágító ablakok motoros árnyékoló rendszerrel,
-elektromos, távvezérelhető kapuk,
-kőpárkányok,
-kőfurnér lábazati és dekorelemek,
-nappali esetében különleges, "dőltetős" kivitelezés,
-videó kaputelefon,
-kamerarendszer (CCTV) önálló, zárt képrögzítés, testre szabható értesítésekkel, eseménynaplózással,
-PARADOX riasztórendszer, minden nyitható ablak, ajtó külön biztosítva + térfelügyelet,
-prémium VINYL és 3D csempeburkolatok,
-extra minőségű tapéták,
-energiatakarékos LED világítás az egész házban,
-több darab egyedi, kézzel készült, exkluzív világítótest, (Tom Dixon, LODES…stb.)
-egyedileg, méretre gyártatott beépített bútorok,
-20 m2 elektromosan mozgatható pergolával FEDETT grillterasz,
-50 m2 fedetlen terasz,
-wpc-vel és magas minőségű műfűvel borított teraszok,
-kertizuhany,

-gyönyörűen parkosított kert, szép növények,
-mozgásérzékelős kültéri világítás,
- föld alatti esővízgyűjtő tartály,
-programozható dekorgömbök (előkert, terasz, hátsó kert),
-épület díszkivilágítás,
-kerti növényzet dekormegvilágítás,
-öntözőrendszer,
-automatizált kapurendszer,
-fűtött, jégmentesíthető garázslehajtó,
-padlófűtéssel ellátott 2 állásos garázs,
-Husqvarna robot fűnyíró, GPS jeladóval,
-hatalmas kb. 40 m2-es, zárható kerti tároló a terasz alatt,
-épület melletti oldalsó parkoló, mintegy 22 méternyi hosszban műfűvel borítva,
-elektromos műfű borzoló és karbantartó gép,
- falazatba épített biztonsági, értékmegőrző faliszéf,

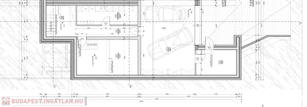
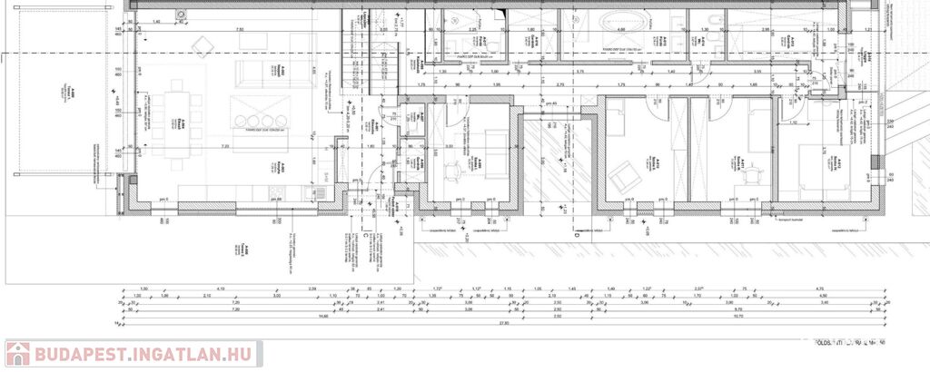
FÖLDSZINT (168 m2):
Gyakorlatilag teljes egészében COREtec Essentials 1800+ Tasman Oak, parafaalátétes Vinyl padlóburkolattal borítva, ORAC dekor szegő és díszlécekkel, valamint egyéb ORAC dekorelemekkel és SIBU Design exkluzív falpanelekkel kiegészítve. A belső terek falfelütei, kevés kivétellel, gyakorlatilag teljes mértékben ARTE tapétával borítottak.
Nappali:
Tágas étkezős nappali hatalmas üvegfelületekkel, szédítő, 6 métert meghaladó belmagassággal, nyitott és zárt teraszkapcsolattal rendelkezik. A házban összesen 4 db FAKRO gyártmányú, fix (nem nyitható), síküveges felülvilágító ablak került beépítésre, melyek háromrétegű hőszigetelő üvegezéssel, valamint10% relatív átvilágítású külső hővédő rolóval vannak ellátva, amelyek napelemes-akkumulátoros működéssel, automata vagy távirányítós üzemmódban szolgálják ki a felmerülő igényeket.
A nappali teljes árnyékolásában Zsaluzia és napháló is segítséget nyújt, ahogyan a méretes függönyök mozgatása is távvezérléssel biztosított.
Biztonsági zárral ellátott Hoppe ajtószerkezet, Dline újlenyomat olvasóval felszerelve! Nyitás újlenyomattal, mobiltelefonnal, Amazon Alexa hangaszisztens, távoli engedélyezés
A nappali egyértelmű éke, a német gyártmányú Himolla PROmotion 1808 bőr ülőgarnitúra, mely “L-alakú”, többféle bővítési, felhasználási lehetőséget, elektromosan előhívható lábtámasztékot biztosít. Az ülőgarnitúra fizikai méretei: 3,8m x 2m
Ugyancsak szemet gyönyörködtető látványt nyújt az impozáns méretű, gépesített konyha is. Az olasz gyártmányú ARAN cucine konyhabútort, DEKTON kő munkalappal, konyha szigettel és falburkolatokkal egészítették ki. A beépítésre került gépek, Electrolux gyártmányúak (indukciós főzőlap, elszívó, mikrohullámú sütő grill funkcióval, multifunkciós sütő Steam Pro 900 gőzsütő, gőztisztítással) a teljesen új, még fóliázott 655 literes Side-by-Side hűtőszekrény pedig LG gyártmány. Méretei és logikus felépítése miatt, ebben a modern konyhában, álom a főzés!
Szülői háló
Nagyerdőre néző panorámaablakokkal, valamint egy kávézó terasszal rendelkezik, a természetközeli élményt, a dupla üvegezésű biztonsági korlát és a SlateDesign kőfurnér dekorburkolat teszi teljessé

Két külön gardróbszoba
Természetesen a nemeknek megfeleltethető és elvárható (jelentős) méretbeli különbségekkel ????

Master fürdőszoba
Dekorvilágított, elektromos törölközőszárítóval felszerelt, RAVAK zuhanykabinnal és AREZZO design SILK szabadon álló káddal, DURAVIT bútorzattal, DURAVIT mosdókagylókkal, valamint mennyezeti bevilágító ablakkal és HANSGROHE szerelvényekkel/csaptelepekkel ellátott.

Vendég fürdőszoba
RAVAK zuhanykabinnal, függesztett RAVAK wc csészével, GEBERIT üveg nyomólappal, elektromos törölközőszárítóval, kapcsolható elektromos fűtésű csempe padozattal, DURAVIT bútorzattal, DURAVIT mosdókagylóval, valamint mennyezeti bevilágító ablakkal és HANSGROHE szerelvényekkel/csaptelepekkel került kialakításra.

Dolgozó/vendégszoba
Rejtett tárolóhelyiséggel, mely az egyedileg készült bútorzaton keresztül érhető el.

Kettő egymás mellett kialakított, méretében azonos gyerekszoba



ALAGSOR (98 m2):
(a garázs és a gépészeti helyiség kivételével Moduleo Transform Vinyl padlóburkolat került kialakításra, ORAC dekor szegő és díszlécekkel, továbbá ARTE tapétákkal borított

Garázs
56nm dupla garázs (Külön termosztáttal, padlófűtéssel és járólappal burkolt terület, ahol a különálló gépészeti helyiség is megtalálható. Egyedi, méretre gyártott és tárolásra alkalmas bútorokkal beépített. A barkácsolás szerelmeseit pedig nagy teherbírású, fém fiókokkal ellátott munkaasztal örvendezteti meg. Hörmann ProLift garázsajtó és motor (okos vezérléssel, távolról, telefonról vezérelhető) Porraloltó készülékek, fali mosó tömlődob…stb.)
-gépészeti helyiség
(HMV tároló, hőszivattyú, tágulási tartályok extra szivattyúmotorok és kiállások beépítve egy esetleges gépészeti bővítés esetére, Huawei inverter wifi modullal, BWT vízlágyító rendszer, biztosítékszekrény, fűtésvezérlő, mosdókagyló és csaptelep)
A lakórészt a garázstól egy kulccsal is zárható tűzvédelmi biztonsági ajtó választja el, mely a Tisza Ajtó Kft. kivitelezésében valósult meg.

Mosókonyha
Egyedi, méretre készült bútorzattal került kialakításra, melyben egy beépített ELECTROLUX alulfagyasztós kombi hűtőszekrény is helyet kapott) Ugyancsak a mosókonyhában található meg a Sabiana Energy Smart hővisszanyerős szellőzőrendszer is, mely a folyamatosan áramló és szűrt friss levegő biztosításáért felel, míg az épített csizmamosó a mindennapokat segíti.
Szabadidő/mozi-szoba
Biztonsági dupla üvegkorláttal, tapétázott falakkal, vinyl burkolattal és egyedileg készült médiaszekrénnyel került kialakításra

TOVÁBBI HELYISÉGEK
- 2x előszoba (egy a nappali részeként, a főbejáraton, illetve egy a garázs felőli folyosón)
-külön wc 1., (HANSGROHE szerelvényekkel/csapteleppel, DURAVIT bútorzattal, DURAVIT mosdókagylóval, multifunkciós, akár telefonról is vezérelhető GROHE Sensia Arena bidéfunkciós okos toalettel és GEBERIT üveg nyomólappal felszerelt helyiség)
-külön wc 2. (HANSGROHE szerelvényekkel/csapteleppel, függesztett RAVAK wc csészével és GEBERIT üveg nyomólappal ellátott helyiség)
-tároló szoba, mely a lépcső alatti teret hivatott kihasználni és egy zárható ajtóval rendelkező tapétázott tároló.

TERASZ (50 m2)
WPC burkolattal fedett, melyet kizárólag a pergola alatti, műfüvesített rész töri meg. Umbroll exklúzív alumínium, nyitható lamellás bioklatikus pergola, 100%-ban vízálló tető és a beépített rejtett vízelvezetéssel, esőérzékelővel, automatikus zárás funkcióval továbbá oldalain leereszthető motoros naphálókkal.
KERT (220 m2)
Füvesített és öntözőrendszerrel kiépített, míg a kerti tároló a terasz alatti területet hasnosítja.



OKOSOTTHON FUNKCIÓK

A ház számos okosotthon funkcióval rendelkezik, azaz telefonos applikáción keresztül vezérelhető, programozható, valamint az épület távolról teljes egészében felügyelhető.

-a hűtés-fűtés,
-az árnyékolástechnika,
-a mennyezeti 4 db bevilágító ablak árnyékolása
-a szellőztetés,
-a kamerarendszer,
-a riasztó rendszer,
-a kapuk,
-a világítás,

Egyedi, rendkívül magas minőségű ingatlan, mely felsorolhatatlan mennyiségű extrát és részletekben elmerülő gondos kivitelezési megoldást alkalmaz.

További információkért és megtekintésért keressen bizalommal!
TRIPSÓ TIBOR
+36 30 942 5373
Prémium ingatlanértékesítő
Városi Ingatlaniroda
Debrecen
(További képekért és információkért kérem hívjon!)

Családi ház részletei

Ár: 369 000 000 Ft
Méret: 266 négyzetméter
Azonosító: 11579695
Irodai azonosító: 104751
Telek: 670 négyzetméter
Ingatlan állapota: Kitűnő
Jelleg: ikerház
Építőanyag: Tégla
Fűtés jellege: Cirkó
Egész szobák: 6
Nappalik: 1

Egyéb jellemzők

  • Beépíthető tetőtér
  • Csatorna
  • Garázs
  • Melléképület
  • Pince
  • Terasz

Így keressen budapesti ingatlant négy egyszerű lépésben. Csupán 2 perc, kötelezettségek nélkül!

Szűkítse a budapesti ingatlanok
listáját
Válassza ki a megfelelő
budapesti ingatlant
Írjon a hirdetőnek
Várjon a visszahívásra